Шлагбаум разработан для эксплуатации в регионах с арктическим климатом, где температура может опускаться до -60°С, для контроля въезда на территорию промышленных предприятий, бизнес-центров, коттеджных поселков, жилых комплексов, автостоянок.
Надёжность и безопасность
• Пять лет гарантии на все оборудование PERCo
• Дополнительный обогрев, утепление стойки фольгированным пеноматериалом.
• Коррозионная стойкость и работа при низких температурах за счет исполнения из стали марки 09Г2С, покрытой цинком и порошковой краской
• Защита механизма при несанкционированном подъеме стрелы
• Возможность подключения устройства аварийного открытия шлагбаума
• Защита механизма и стрелы при наезде автомобиля
Удобство
• Правосторонняя и левосторонняя установка стрелы
• Cтрела может быть укорочена до 2,5 метров. Набор пружин в комплекте поставки помогает настроить натяжение для необходимого размера стрелы.
• Широкий проезд может быть оборудован двумя шлагбаумами, один из которых дублирует работу второго
• Дополнительная подсветка зоны проезда
• Подключение двух светофоров, видеорегистратора и сирены
• Подключение аксессуаров как на 24В, так и на 12В
Комплект поставки:
• Стойка шлагбаума со встроенным блоком управления: 1 шт.
• Дополнительный обогрев, утепление стойки фольгированным пеноматериалом: 1 к-т
• Ключи от замка дверцы: 2 шт.
• Стрела шлагбаума с комплектом крепежа и наклеек PERCo-GBR3.0 - круглое сечение, 3 метра: 1 шт.
• Монтажный комплект:
- Пружина D3,5 (с синим маркером): 2 шт.
- Пружина D4 (с зеленым маркером): 2 шт.
- Пружина D4,5 (с желтым маркером): 2 шт.
- Межпружинная втулка: 1 шт.
- Талреп: 1 шт.
- Болт М12 с гайкой, с двумя плоскими и одной пружинной шайбами: 1 шт.
- Рычаг привода для левосторонней установки стрелы: 1 шт.
- Монтажная пластина: 1 шт.
- Перемычка (джампер)с3 шт.
• Комплект документации: 1 к-т
Не входит в комплект поставки и приобретается отдельно:
• Стойка опорная с ловителем стрелы PERCo-GBS1
• Стойка для фотоэлемента безопасности PERCo-GDS1
• Дополнительный фотоэлемент безопасности PERCo-GD1
• Пульт ДУ
• Устройство РУ (приемник) PERCo-GCR1
• Брелок для РУ PERCo-GCR2
• Светодиодная лента для дополнительной подсветки стрелы PERCo-GBL3.0
• Сирена
• Контроллер петли индуктивности
• GSM / BLE модуль управления шлагбаумом PERCo-GCM1
Особенности
• Возможность эксплуатации в качестве отдельного ИУ либо в качестве элемента СКУД, автоматической парковки и др
• Стрела шлагбаума блокируется в крайних положениях. Предусмотрена аварий- ная разблокировка привода для перевода стрелы шлагбаума вручную, в том числе при пропадании электропитания
• Конструкция предусматривает как правостороннюю, так и левостороннюю установку стрелы
• При отключении электропитания стрела остается в том же положении, что и до отключения
• При обнаружении препятствия стрела меняет направление движения.
• На прямоугольно-овальной стреле GBO предусмотрена накладка-буфер из ПВХ, которая защищает автомобиль от случайного удара стрелой
• Высокая коррозионная стойкость конструкции обеспечивается комбинированным покрытием элементов конструкции цинком и порошковой краской
• Предусмотрена возможность синхронной работы двух шлагбаумов PERCo-GS14 по принципу ведущий-ведомый
• Предусмотрена установка фотоэлемента безопасности внутри корпуса шлагбаума, а также подключение дополнительного датчика, контролирующего открытие
стрелы. Фотоэлемент безопасности также используется, как датчик проезда через шлагбаум
• На плате БУ шлагбаума имеются разъемы питания для подключения аксессуаров как на 24 В, так и на 12 В
• Предусмотрена возможность управления дополнительным оборудованием: светофорами для двух направлений проезда, видеорегистратором, сиреной. Имеется возможность подключения дополнительного освещения зоны проезда.
• Возможность подключения дополнительной подсветки зоны проезда (или иной зоны).
• Возможность подключения датчика безопасности для предотвращения повреждения транспортных средств и травмирования прохожих стрелой шлагбаума.
• Возможность управления звуковой или световой аварийной сигнализацией
Новые возможности управления шлагбаумом PERCo
Новая возможность для пользователей шлагбаума PERCo – управление и конфигурация устройства с помощью смартфона.
При наличии модуля GSM / BLE управление шлагбаумом может быть реализовано по звонку и с помощью мобильного приложения PERCo.Шлагбаум.
Настройку шлагбаума можно осуществлять через мобильное приложение PERCo.Конфигурация. Среди возможностей приложения – управление списком номеров, установка паролей на доступ к настройке и управлению шлагбаумом, настройка характеристик, формирование отчетов о проездах.
Способы управления
Система контроля доступа
Применение считывателей дальнего действия позволяет водителю не покидать автомобиль при предъявлении идентификатора.
Управление от пульта
Доступ может осуществляться с помощью пульта дистанционного управления, радиобрелоков или от кнопки открыть/закрыть.
Видеонаблюдение
Установленная система видеонаблюдения позволяет реализовывать контроль доступа по распознаванию номеров.
Звонок со смартфона
Номера заносятся на sim-карту посредством sms-сообщения, при наборе определенного номера звонок сбрасывается, а шлагбаум открывается для проезда. Для удаления номера достаточно отправить sms-сообщение на sim-карту шлагбаума.
Мобильное приложение
Шлагбаум синхронизируется со смартфоном с помощью Bluetooth. При синхронизации однократно вводится пароль доступа, впоследствии шлагбаум будет открываться нажатием одной кнопки в приложении.
Свободный выезд
Для организации свободного выезда с территории устанавливается магнитная петля.
Приложения PERCo.Шлагбаум и PERCo.Конфигурация доступны для скачивания в Google Play.
Режимы управления
Эксплуатация шлагбаума возможна на объектах с интенсивностью движения до 100 процентов (до 7 000 проездов ТС в сутки).
«Импульсный» – команды представляют собой импульсные сигналы и подаются от разных источников (кнопок ДУ): «Открыть» – от одного или двух источников (кнопок ДУ), «Закрыть» – от третьего источника (кнопки ДУ).
«Потенциальный» – команды представляют собой сигналы постоянных уровней и пода- ются: «Открыть» – подача сигнала от одного или двух источников (кнопок ДУ), команда
«Закрыть» – отсутствие сигнала от этих источников или дополнительно от третьего источника (кнопки ДУ).
«Пошаговый» – команды «Открыть» и «Закрыть» представляют собой импульсные сигналы и подаются от одного источника (кнопки ДУ) попеременно.
Для контроля проезда в двух направлениях используются две разные кнопки на открытие шлагбаума и одна на закрытие, при этом используются два регулирующих светофора, по одному на каждое направление.
Характеристики:
• Напряжение питания шлагбаума: 220 В / 50 Гц
• Потребляемый ток, не более: 1,4 А
• Потребляемая мощность шлагбаума:
- без подсветки стрелы и дополнительного оборудования: не более 200 Вт
- с подсветкой стрелы и дополнительным оборудованием: не более 300 Вт
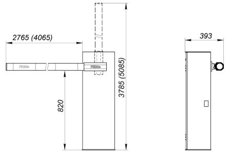
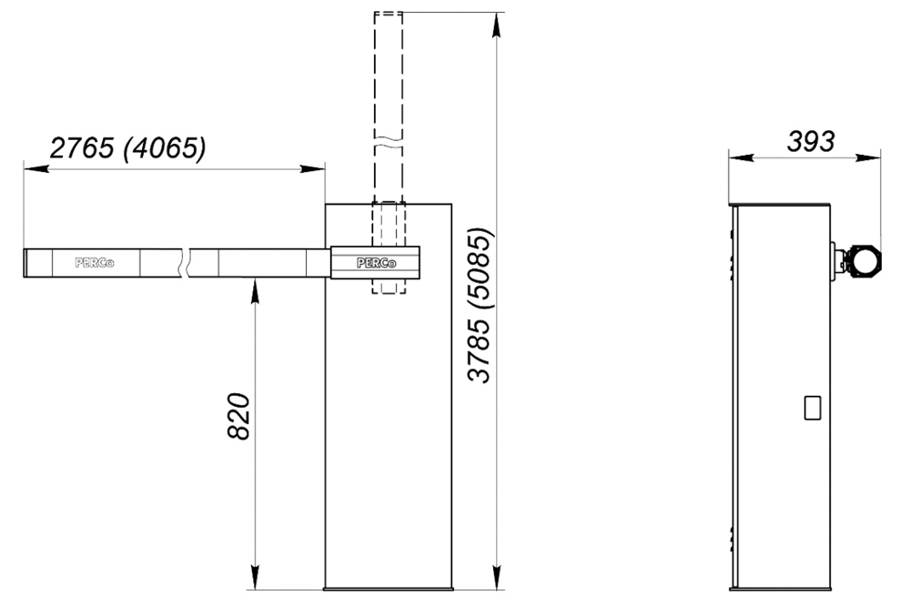
• Длина стрелы шлагбаума: 2,5…4,3 м*
• Ширина перекрываемого проезда: 2,3…4,0 м
• Время открытия: 3 – 6 сек
• Интенсивность работы**: до 100 %
• Максимальная пропускная способность: до 7000 ТС/сутки
• Степень защиты оболочки: IP54 по EN 60529
• Класс защиты от поражения электрическим током: I по IEC 61140
• Средняя наработка на отказ: не менее 3 000 000 циклов
• Средний срок службы: не менее 8 лет
• Габаритные размеры (ДхШхВ):
- с опущенной круглой стрелой: 393 ×3105×1001 мм
- с поднятой круглой стрелой: . 393×340×3785 мм
• Масса (нетто):
- стойки шлагбаума без стрелы: не более 65 кг
- шлагбаума со стрелой: не более 73 кг
*Стрела поставляется двух размеров – 3 м и 4,3 м, при необходимости ее можно уменьшить (отрезать) до нужной длины (мин. длина – 2.5 м). При длине стрелы более 3-х метров Производитель рекомендует использовать опорную стойку с ловителем стрелы PERCo-GBS1. 2 **Интенсивность работы – показатель, характеризующий возможность непрерывной работы механизма шлагбаума в течение заданного периода: если его привод работает без остановки, то интенсивность работы составляет 100%
Бренд шлагбаума | PERCo |
Тип шлагбаума | Автоматический |
Тип привода шлагбаума | Электромоторный |
Ширина перекрываемого проезда | 3 м |
Стрела в комплекте | 3 м |
Сечение стрелы | Круглое |
Подсветка стрелы | Светоотражающие наклейки |
Материал тумбы шлагбаума | Окрашенная сталь |
Скорость открывания | 3 - 6 сек. |
Интенсивность | 100% |
Назначение шлагбаума | Для парковки, Для дворовых территорий, Для промышленных объектов |
Напряжение питания | 220 В |
Потребляемая мощность, макс. | 300 Вт |
Потребляемый ток, макс. | 1.4 А |
Напряжение питания двигателя | 24 В |
Габариты | 2765х393х1000 мм |
Вес, кг | 73 |
Рабочая температура | от -60°C до +55°C |
Рабочая влажность | не выше 98% без конденсации |
Наработка на отказ, не менее | 3 млн. циклов |
Сертификаты | Транспортной безопасности |
Гарантия | 5 лет |
Страна производства | Россия |
Функция «Быстрый заказ» позволяет покупателю не проходить всю процедуру оформления заказа самостоятельно. Вы заполняете форму, и через короткое время вам перезвонит менеджер магазина. Он уточнит все условия заказа, ответит на вопросы, касающиеся качества товара, его особенностей. А также подскажет о вариантах оплаты и доставки.
По результатам звонка, пользователь либо, получив уточнения, самостоятельно оформляет заказ, укомплектовав его необходимыми позициями, либо соглашается на оформление в том виде, в котором есть сейчас. Получает подтверждение на почту или на мобильный телефон и ждёт доставки.
Оформление заказа в стандартном режиме
Если вы уверены в выборе, то можете самостоятельно оформить заказ, заполнив по этапам всю форму.
Заполнение адреса
Выберите из списка название вашего региона и населённого пункта. Если вы не нашли свой населённый пункт в списке, выберите значение «Другое местоположение» и впишите название своего населённого пункта в графу «Город». Введите правильный индекс.
Доставка
В зависимости от места жительства вам предложат варианты доставки. Выберите любой удобный способ. Подробнее об условиях доставки читайте в разделе «Доставка».
Оплата
Выберите оптимальный способ оплаты. Подробнее о всех вариантах читайте в разделе «Оплата»
Покупатель
Введите данные о себе: ФИО, адрес доставки, номер телефона. В поле «Комментарии к заказу» введите сведения, которые могут пригодиться курьеру, например: подъезды в доме считаются справа налево.
Оформление заказа
Проверьте правильность ввода информации: позиции заказа, выбор местоположения, данные о покупателе. Нажмите кнопку «Оформить заказ».
Наш сервис запоминает данные о пользователе, информацию о заказе и в следующий раз предложит вам повторить к вводу данные предыдущего заказа. Если условия вам не подходят, выбирайте другие варианты.
Если Вы хотите узнать об условиях доставки и оплаты, но не желаете о них читать, то Вы можете позвонить любому нашему сотруднику, и он обязательно Вам поможет.
Покупка за безналичный расчет
При оплате за безналичный расчет наш сотрудник свяжется с Вами, чтобы подтвердить заказ и уточнить сроки и адрес доставки. После оформления заказа сотрудник нашей компании вышлет вам счет, по которому необходимо будет произвести оплату.
После оплаты заказа к Вам приедет наш курьер, который доставит ваш заказ.
Самостоятельно забрать заказ из пунктов самовывоза Вы можете после его оплаты по безналичному расчету. Оплата доставки до пунктов выдачи транспортных компаний производится по тарифам выбранной Вами транспортной компании непосредственно в месте получения заказа.
Самовывоз из офиса нашей компании в Зеленограде, так же возможен после предоплаты по безналичному расчету, и предварительной договоренности с менеджером.
Интернет-магазин выполняет доставку любого товара своей собственной Службой доставки.
Стоимость доставки курьером
Стоимость доставки по Москве, Все товары —750 руб., бесплатная доставка от 25000 руб
Стоимость доставки по Московской области рассчитывается для каждого заказа индивидуально и зависит от суммарного веса товаров заказа и удаленности адреса доставки.
Время доставки
Время доставки согласовывается с менеджером Службы доставки, который обязательно свяжется с вами сразу после того, как вы разместите свой заказ.
Для осуществления доставки в регионы России мы пользуемся услугами компаний СДЭК, ЖелДорЭкспедиция, Автотрейдинг, Деловые Линии. В таком случае, указанными кампаниями взимается стоимость доставки по их внутренним тарифам с заказчика при получении товара.
Самовывоз
Забрать товар самостоятельно и абсолютно бесплатно можно только по адресу: Москва, Зеленоград, Панфиловский проспект, дом 10.
Забрать товар самовывозом можно по любому из адресов самовывоза указанных здесь, стоимость доставки до пункта самовывоза рассчитывается для каждого заказа по тарифам транспортных компаний.









