Характеристики:
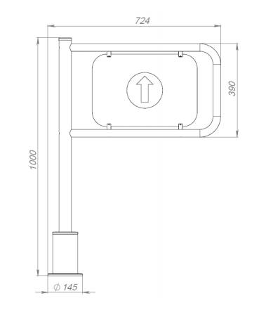
• Габаритные размеры (ШхГхВ), в зависимости от ширины прохода, мм
- 600 мм: 724х145х1000
- 800 мм: 924х145х1000
- 1000 мм: 1124х145х1000
- 1200 мм: 1324х145х1000
• Вес, кг*: от 11 до 13
• Диапазон температур, ºС: +1…+40
• Относительная влажность воздуха, %, не более: 80
• Срок службы, лет: 8
Конструкция изделия
Все элементы конструкции калитки выполнены из шлифованной нержавеющей стали. Створка калитки крепится к стойке при помощи установочных винтов. Стойка вращается относительно неподвижного основания, прикрепленного к полу.
Крепление к полу скрывает крышка основания.

В калитке предусмотрена возможность установки створок различной длины для формирования прохода шириной 600, 800, 1000 и 1200 мм. На рисунке показан габаритный размеры калитки для ширины прохода 600 мм.

Калитка закрывается после прохода при помощи пружины, направление движения обозначается стрелкой.
Исполнение калитки может быть выполнено в 2-х вариантах: правом и левом. На рисунке указано направление, куда открывается калитка.

Категорически запрещается:
• устанавливать калитку вне сухих и отапливаемых помещений;
• применять для чистки изделия химически агрессивные к материалам корпуса пасты и жидкости.
ВНИМАНИЕ! Устанавливать калитку надежно, во избежание раскачивания и (или) опрокидывания в процессе эксплуатации. В случае установки калитки на полы низкой прочности принимайте меры по укреплению полов в месте установки.
Перед началом проверки работоспособности калитки внимательно изучите руководство.
Установка калитки
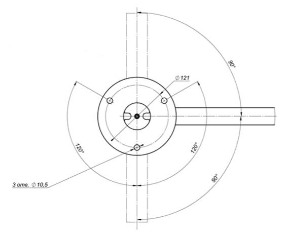
ВНИМАНИЕ! Рекомендуется выполнить разметку установочных отверстий по отверстиям фланца основания стойки калитки с уже установленной створкой.
Подготовьте горизонтальную площадку в месте установки калитки. Откройте коробку, распакуйте изделие и проверьте его комплектность.
Установите створку калитки на стойке при помощи установочных винтов. Убедитесь, что створка калитки надежно закреплена на стойке.
Выполните разметку и просверлите 3 отверстия диаметром 16 мм в полу под анкеры крепления стойки калитки.
Глубина закладного отверстия должна превышать длину анкера на 5 мм. Вставьте анкеры в отверстия.
Установите стойку калитки на подготовленную площадку.
Совместите отверстия в основании калитки с анкерами в полу. Проверьте вертикальность установки калитки в 2-х плоскостях, при необходимости используйте стальные прокладки требуемой толщины для правильной установки калитки. Закрепите фланец основания калитки тремя винтами М10, закрутив их в соответствующие анкеры, используя ключ для винта с внутренним шестигранником S6.

Эксплуатация изделия
Калитка с пружинным возвратом обеспечивает исключительно односторонний проход. После прохода человека через калитку пружинный механизм возвращает створку в исходное (преграждающее) положение. В обратном направлении открытие створки калитки невозможно.
Направление движения обозначается стрелкой, запрет прохода - знаком «кирпич».
Видеообзор калитки К11
Бренд | Oxgard |
Вид калитки | Полуростовая |
Исполнение | Для помещений |
Тип калитки | Механическая |
Направление поворота | Правое |
Материал | Нержавеющая сталь |
Габариты | 1124х145х1000 мм |
Ширина перекрываемого прохода | 1124 мм |
Ширина прохода | 1000 мм |
Вес, кг | 12 |
Материал вставки (створки) | Пластик |
Рабочая температура | от +1°C до +40°C |
Средний срок службы | Не менее 8 лет |
Гарантия | 1 год |
Страна производства | Россия |
Функция «Быстрый заказ» позволяет покупателю не проходить всю процедуру оформления заказа самостоятельно. Вы заполняете форму, и через короткое время вам перезвонит менеджер магазина. Он уточнит все условия заказа, ответит на вопросы, касающиеся качества товара, его особенностей. А также подскажет о вариантах оплаты и доставки.
По результатам звонка, пользователь либо, получив уточнения, самостоятельно оформляет заказ, укомплектовав его необходимыми позициями, либо соглашается на оформление в том виде, в котором есть сейчас. Получает подтверждение на почту или на мобильный телефон и ждёт доставки.
Оформление заказа в стандартном режиме
Если вы уверены в выборе, то можете самостоятельно оформить заказ, заполнив по этапам всю форму.
Заполнение адреса
Выберите из списка название вашего региона и населённого пункта. Если вы не нашли свой населённый пункт в списке, выберите значение «Другое местоположение» и впишите название своего населённого пункта в графу «Город». Введите правильный индекс.
Доставка
В зависимости от места жительства вам предложат варианты доставки. Выберите любой удобный способ. Подробнее об условиях доставки читайте в разделе «Доставка».
Оплата
Выберите оптимальный способ оплаты. Подробнее о всех вариантах читайте в разделе «Оплата»
Покупатель
Введите данные о себе: ФИО, адрес доставки, номер телефона. В поле «Комментарии к заказу» введите сведения, которые могут пригодиться курьеру, например: подъезды в доме считаются справа налево.
Оформление заказа
Проверьте правильность ввода информации: позиции заказа, выбор местоположения, данные о покупателе. Нажмите кнопку «Оформить заказ».
Наш сервис запоминает данные о пользователе, информацию о заказе и в следующий раз предложит вам повторить к вводу данные предыдущего заказа. Если условия вам не подходят, выбирайте другие варианты.
Если Вы хотите узнать об условиях доставки и оплаты, но не желаете о них читать, то Вы можете позвонить любому нашему сотруднику, и он обязательно Вам поможет.
Покупка за безналичный расчет
При оплате за безналичный расчет наш сотрудник свяжется с Вами, чтобы подтвердить заказ и уточнить сроки и адрес доставки. После оформления заказа сотрудник нашей компании вышлет вам счет, по которому необходимо будет произвести оплату.
После оплаты заказа к Вам приедет наш курьер, который доставит ваш заказ.
Самостоятельно забрать заказ из пунктов самовывоза Вы можете после его оплаты по безналичному расчету. Оплата доставки до пунктов выдачи транспортных компаний производится по тарифам выбранной Вами транспортной компании непосредственно в месте получения заказа.
Самовывоз из офиса нашей компании в Зеленограде, так же возможен после предоплаты по безналичному расчету, и предварительной договоренности с менеджером.
Интернет-магазин выполняет доставку любого товара своей собственной Службой доставки.
Стоимость доставки курьером
Стоимость доставки по Москве, Все товары —750 руб., бесплатная доставка от 25000 руб
Стоимость доставки по Московской области рассчитывается для каждого заказа индивидуально и зависит от суммарного веса товаров заказа и удаленности адреса доставки.
Время доставки
Время доставки согласовывается с менеджером Службы доставки, который обязательно свяжется с вами сразу после того, как вы разместите свой заказ.
Для осуществления доставки в регионы России мы пользуемся услугами компаний СДЭК, ЖелДорЭкспедиция, Автотрейдинг, Деловые Линии. В таком случае, указанными кампаниями взимается стоимость доставки по их внутренним тарифам с заказчика при получении товара.
Самовывоз
Забрать товар самостоятельно и абсолютно бесплатно можно только по адресу: Москва, Зеленоград, Панфиловский проспект, дом 10.
Забрать товар самовывозом можно по любому из адресов самовывоза указанных здесь, стоимость доставки до пункта самовывоза рассчитывается для каждого заказа по тарифам транспортных компаний.







