Состав комплекта:
• Стойка калитки АК160 НЕРЖ: 1 шт.
• Блок электронного управления БЭУ: 1 шт.
• Блок питания (встроен в БЭУ): 1 шт.
• Пульт дистанционного управления ПДУ: 1 шт.
• Дуга с пластиковой вставкой: 1 шт.
• Паспорт. Руководство по эксплуатации: 1 шт.
Основные области применения мобильных комплексов:
• Мобильные комплексы целесообразно применять в тех случаях, когда нужно быстро и без хлопот развернуть временные пропускные зоны, а затем передислоцировать их в другое место. Необходимость в этом возникает во время проведения выставок, саммитов, спортивных состязаний и др.
• Иногда условия монтажа не позволяют надежно закрепить преграждающее устройство к полу (непрочный или тонкий пол, невозможность установки изделий на шпильках и т.п.); в этом случае мобильные комплексы могут оказаться единственным возможным решением.
• Также иногда бывает, что заказчик не хочет портить красивые или эксклюзивные полы с тем, чтобы оставалась возможность переделки в будущем зоны доступа и сохранения внешнего вида полов. Для защиты полированных полов от царапин нижняя часть всех подиумов «Ростов-Дон», соприкасающаяся с полом, покрыта резиной.
Объемный подиум опирается на 4 ножки с обрезиненной нижней частью и приподнят над полом на 20мм, что позволяет проложить под ним кабель-канал высотой до 20мм. Другим преимуществом объемного подиума является то, что сам подиум меньше подвержен коррозионному действию влаги, находящейся на полу или земле. При установке объемных подиумов «в затылок» друг к другу они могут центрироваться специальными ловителями (опция), расположенными под плитами подиумов. В основании объемного подиума лежит массивная стальная плита, покрытая сверху рифленым листом из алюминия или нержавеющей стали.
Автоматические приводные двухсторонние калитки серии «Ростов-Дон АК 160» предназначены для управления потоками людей на стадионах, аттракционах и в других местах массового скопления людей. Благодаря широкому диапазону размеров дуги и автоматическому режиму открывания-закрывания она универсальна и поэтому применима практически везде, в том числе и для пропуска инвалидов.
Толстостенный корпус калитки из нержавеющей стали позволяет использовать ее вне помещений и обеспечивает достаточную «вандалозащищенность».
Автоматика привода дуги обеспечивает безопасную работу калитки. При столкновении дуги с препятствием включается режим противотравматичного фрикционного пробуксовывания. После освобождения прохода обычный режим работы калитки автоматически восстанавливается.
Калитка двухсторонняя. Открывается как по часовой стрелке, так и против в зависимости от подаваемой команды.
Калитка по команде может остаться в открытом состоянии, обеспечивая тем самым беспрепятственный проход в случае срабатывания пожарной сигнализации, а также поступления команд от СКУД или с пульта дистанционного управления. При исчезновении питающего напряжения калитку можно открыть вручную, при этом калитка остается в открытом положении до момента восстановления питающего напряжения.
Блок электронного управления калитки состыковывается со СКУД ведущих российских и зарубежных производителей.
Калитка может быть без индикации (по спецзаказу) и с двухцветной индикацией запрета-разрешения на проход (стандартное исполнение).
Калитка управляется с пульта дистанционного управления (ПДУ) или от радиобрелка (опция).
По условиям применения калитки соответствуют группе УХЛ 2 по ГОСТ 15150-69 для эксплуатации вне помещений под навесом в интервале температур от -30 до +50ºС.
Характеристики:
• Напряжение питания переменного тока 50Гц, В: 180-240
• Потребляемая мощность, не более, Вт:
- при попытке несанкционированного прохода: 100
- при перемещении дуги электроприводом: 60
- в режиме «закрыто» и при санкционированном проходе (электропривод обесточен): 5
• Масса вместе с поворотной дугой, кг: 37
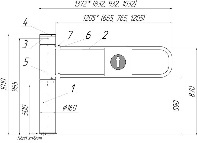
• Габаритные размеры калитки (без дуги), мм: 264х175х1010
• Ширина перекрываемого прохода, мм: 832, 932, 1032, 1372 (стандартно 1372, с дугой 1200 мм)
• Максимальная длина интерфейсного кабеля от БЭУ до ПДУ, м: 20 (стандартная 5)
• Максимальная длина кабеля от стойки калитки до БЭУ, м: 5 (стандартная 5)
• Габаритные размеры выносного БЭУ, мм: 255х210х60
• Диапазон регулировки временного интервала нахождения калитки в открытом состоянии, с: 4÷60
• Максимальное усилие на середине дуги, кгс: 50
• Срок службы, лет: 8
Устройство и принцип работы
Калитка состоит из стойки 1, в нижней части которой находится поворотный механизм с электрическим приводом, а также блока электронного управления, и дуги 2 для перекрытия прохода. Поворотный механизм имеет предохранительное устройство (жидкостную муфту), обеспечивающее безопасную работу электрического привода, травмобезопасность калитки и мягкую доводку дуги в крайние положения. В верхней части стойки под крышкой 4 установлен датчик контроля положения дуги. У основания калитки выходит кабель с разъемом для подключения выносного блока электронного управления калитки (БЭУ). Внутри корпуса БЭУ расположены три кнопки – две кнопки установки временного интервала нахождения калитки в открытом состоянии и кнопка калибровки.

Пульт представляет собой разборный пластмассовый корпус, состоящий из днища и крышки. На крышке расположены два светодиодных индикатора и трехкнопочный блок клавиатуры. Выкрутив четыре винта М3, расположенных по углам днища корпуса, можно снять крышку и получить доступ к электронной схеме ПДУ. В торце корпуса расположен разъем-розетка типа 8P8C для подключения интерфейсного кабеля. Для подключения к калитке оба конца кабеля обжимаются по стандарту EIA/TIA-568B. Цоколевка разъема и цвет жил интерфейсного кабеля приведен в таблице.

При необходимости можно поменять местами кнопки «Направление 1» и «Направление 2» и соответствующую им индикацию. Для этого необходимо:
1. снять крышку корпуса ПДУ;
2. переставить оба джампера XP1 и XP2 из верхнего положения в нижнее;
3. развернуть блок клавиатуры на 180°;
4. закрыть крышку корпуса ПДУ.
Работа калитки осуществляется следующим образом.
Исходное состояние калитки — «закрыто». Дуга перекрывает проход (находится в положении «проход перекрыт»). Индикация в головной части калитки 3 и на ПДУ для обоих направлений красного цвета. Электромагнит блокировки обесточен.
Несанкционированный проход. При попытке без разрешения вручную повернуть дугу калитки (несанкционированный проход) срабатывает электромагнит блокировки, препятствующий дальнейшему перемещению дуги, и включается постоянный звуковой сигнал (зуммер установлен в корпусе БЭУ). После отпускания дуги, она автоматически возвращается в исходное положение («проход перекрыт»), электромагнит обесточивается, звуковой сигнал отключается.
Для осуществления однократного прохода в каком-либо направлении необходимо кратковременно нажать (удержание не более 1 с) и отпустить соответствующую кнопку направления ПДУ. Индикация выбранного направления прохода в головной части калитки 3 и на ПДУ переключается из красного в зеленый цвет. Индикация калитки и ПДУ для невыбранного направления остается красного цвета. Электромагнит блокировки обесточен. Включается электропривод калитки, который поворачивает дугу на 90° в соответствующую сторону от положения «проход перекрыт». Перемещение дуги вблизи крайнего положения (конечная доводка 5÷10°) осуществляется пружиной. Скорость доводки регулируется натяжением пружины. Калитка находится в состоянии «открыто». По истечении заданного временного интервала автоматически включается электропривод калитки, который поворачивает дугу в положение перекрывающее проход. Конечная доводка также осуществляется пружиной. Калитка переходит в состояние «закрыто».
Для осуществления группового прохода в каком-либо направлении необходимо нажать и удерживать в нажатом состоянии среднюю кнопку ПДУ. Затем, не более чем через 3 секунды после нажатия средней кнопки ПДУ кратковременно нажать (удержание не более 1 с) и отпустить соответствующую кнопку направления. Затем, отпустить среднюю кнопку ПДУ. Индикация выбранного направления прохода в головной части калитки 3 и на ПДУ переключается из красного в зеленый цвет. Индикация калитки и ПДУ для невыбранного направления остается красного цвета. Электромагнит блокировки обесточен. Включается электропривод калитки, который поворачивает дугу на 90° в соответствующую сторону от положения «проход перекрыт». Перемещение дуги вблизи крайнего положения (конечная доводка 5÷10°) осуществляется пружиной. Скорость доводки регулируется натяжением пружины. Калитка находиться в состоянии «открыто». В этом состоянии калитка будет находиться неограниченно долго.
Для отмены режима группового прохода или досрочного завершения однократного прохода необходимо кратковременно нажать (удержание не более 1 с) и отпустить кнопку ПДУ соответствующую разрешенному направлению калитки. Включается электропривод калитки, который поворачивает дугу в положение перекрывающее проход. Калитка переходит в состояние «закрыто».
Если дугу заблокировать в момент ее движения, то шаговый двигатель электропривода может издавать характерный шум. Если дугу калитки, которая находиться в состоянии «открыто», попытаться закрыть вручную, то включается электропривод калитки, препятствующий этой попытке. При этом также возможно возникновение характерного шума шагового двигателя.
Калитка может работать под управлением системы контроля и управления доступом (СКУД) ведущих российских и зарубежных производителей. Подключение СКУД осуществляется к специализированным клеммам, расположенным в выносном БЭУ калитки. Подключение калитки к СКУД и описание работы см. в разделе 7 «Сопряжение и работа со СКУД».
Калитки могут быть состыкованы с соответствующими ограждениями в различных вариациях, обеспечивая формирование необходимых заказчику зон прохода.
Регулировка временного интервала нахождения калитки в открытом состоянии производится с помощью двух кнопок, расположенных в корпусе БЭУ (см. Приложение 2). Кнопка, обозначенная символом «», предназначена для уменьшения временного интервала, символом «+», соответственно, для увеличения. Однократное нажатие на любую из кнопок приводит к увеличению или уменьшению времени задержки на 1 секунду. Интервал времени устанавливается в диапазоне не менее 4 секунд и не более 60 секунд.
Внимание! Регулировка времени задержки производится только при включенном питании и в положении дуги «закрыто».
Звуковой сигнал, подаваемый при несанкционированном проходе можно отключить следующим образом. Троекратно нажмите и отпустите среднюю кнопку пульта. Удержание средней кнопки в нажатом состоянии не должно превышать 1 с. Задержка между последовательными нажатиями средней кнопки пульта не должна превышать 1 секунды.
Для того чтобы снова включить звуковой сигнал троекратно нажмите и отпустите среднюю кнопку пульта или отключите и включите питание калитки.
В калитке предусмотрены два шлейфа пожарной сигнализации. Один из них подключается к клеммам «GND» и «Вх.1», а другой к клеммам «GND» и «Вх.2» блока «IB v1.1» (см. Приложение 2). В заводской комплектации калитки между клеммами «GND» и «Вх.1», а также между клеммами «GND» и «Вх.2» блока «IB v1.1» установлены перемычки. При использовании в калитке шлейфа пожарной сигнализации перемычки нужно удалить.
Сопротивление шлейфа пожарной сигнализации, подключенного к клеммам «GND» и «Вх.1», А ТАКЖЕ к клеммам «GND» и «Вх.2» КАЛИТКИ не должно превышать 100 Ом. на клеммАХ «Вх.1» И «Вх.2» относительно клеммы «GND» присуствует потенциал +5в, ток короткого замыкания не превышает 1 мА.
При обрыве одного или обоих шлейфов калитка переходит в режим «пожарная тревога». Индикация в головной части калитки 3 и на ПДУ для обоих направлений прохода зеленого цвета. Электромагнит блокировки обесточен при любом положении дуги калитки. Включается электропривод калитки, который поворачивает дугу на 90°, открывая проход. Направление открытия дуги зависит от того, какой из двух шлейфов разорван первым. При попытке вручную переместить дугу в положение «проход перекрыт» электропривод возвращает ее в состояние «открыто».
Для отключения режима «пожарная тревога» необходимо восстановить оба шлейфа пожарной сигнализации и после этого кратковременно нажать (удержание не более 1 с) и отпустить любую кнопку направления ПДУ. Или восстановить оба шлейфа пожарной сигнализации и после этого отключить и снова включить питание калитки. Калитка перейдет в исходное состояние «закрыто».
Процедура калибровки калитки осуществляется заводом изготовителем. При необходимости калибровку можно осуществить в любой момент непосредственно на месте эксплуатации калитки. Необходимость в калибровке возникает при замене или ремонте датчика контроля положения дуги. Калибровку удобно осуществлять вдвоем. Кнопка калибровки находиться внутри корпуса БЭУ.
Для запуска процедуры калибровки необходимо включить питание калитки.
1. Нажать и удерживать в нажатом состоянии кнопку калибровки. Калитка переходит в режим калибровки. Звуковой сигнал отключен. Индикация обоих направлений прохода в головной части калитки 3 мигает попеременно красным и зеленым цветом. Индикация обоих направлений ПДУ мигает попеременно красным и зеленым цветом.
2. Вручную повернуть дугу калитки в положение «проход перекрыт». Для того чтобы убедиться в том, что дуга находится в положении «проход перекрыт», поверните ее от предполагаемого положения «проход перекрыт» в любую сторону на небольшой угол (не более 5°) и отпустите. Если механизм доводки вернет дугу в исходное положение, то это положение и является положением «проход перекрыт».
3. Отпустить кнопку калибровки. Включается прерывистый звуковой сигнал. Электропривод калитки перемещает дугу к одному из положений «открыто».
4. Дождаться когда дуга повернется на 90° и достигнет положения «открыто». При этом дуга совершает небольшие колебания возле этого положения в результате упругих ударов о механический стопор внутри корпуса калитки, электропривод издает характерные щелчки.
5. Прижать дугу рукой к механическому стопору для того, чтоб устранить эти колебания.
6. Дождаться остановки электропривода (дуга перестает вибрировать).
7. Отпустить дугу калитки.
8. Дождаться включения электропривода калитки, который начинает перемещать дугу к положению «проход перекрыт».
9. Дождаться когда дуга повернется на 90° и достигнет положения «проход перекрыт».
10. Дождаться когда дуга повернется на 90° и достигнет второго положения «открыто». При этом дуга совершает небольшие колебания возле этого положения в результате упругих ударов о механический стопор внутри корпуса калитки, электропривод издает характерные щелчки.
11. Прижать дугу рукой к механическому стопору для того, чтобы устранить эти колебания.
12. Дождаться остановки электропривода (дуга перестает вибрировать).
13. Отпустить дугу калитки.
14. Дождаться включения электропривода калитки, который начинает перемещать дугу к положению «проход перекрыт». Звуковая сигнализация отключена. Индикация в головной части калитки 3 и на ПДУ для обоих направлений красного цвета.
15. Дождаться когда дуга займет положение «проход перекрыт», калитка переходит в состояние «закрыто». Калитка готова к работе.
Процедуру калибровки можно прервать в любой момент, отключив питание турникета. Запись новых значений углов при этом в энергонезависимую память не производится.
Внимание! В процессе калибровки запрещено препятствовать перемещению дуги калитки.
Требования безопасности
Калитка должна быть заземлена. Клемма заземления находится под основанием калитки со стороны, противоположной дуге. Для доступа к клемме заземления необходимо наклонить калитку вперед.
При эксплуатации калиток необходимо соблюдать общие правила электробезопасности при пользовании электрическими приборами.
Запрещается эксплуатировать изделие при открытых крышках.
При выполнении монтажных, профилактических и ремонтных работ электрическое питание должно быть отключено перед открытием крышек.
Изготовитель не несет ответственности за ущерб и отказы, обусловленные невыполнением или ненадлежащим выполнением требований и указаний настоящего руководства и, соответственно, все претензии в этом случае отклоняются.
Подготовка к работе и порядок установки
Распакуйте калитку и проверьте комплектность.
В соответствии с видом сверху или по калитке разметьте и установите четыре крепежных (анкерных) болта (в комплект поставки не входят).

Закрепите калитку через четыре отверстия Ø13мм в основании к полу. При этом отклонение от вертикальности в любой плоскости не должно превышать 3мм.
Уложите кабель для подключения калитки к БЭУ.
Заземлите калитку (провод заземления в комплект поставки не входит).
Установите дугу 2. Для этого необходимо надеть дугу с декоративными втулками 6 на пальцы поворотной средней части калитки 5, затем подвинуть к поворотной трубе 5 декоративные втулки 6 и зафиксировать дугу двумя винтами 7.
Закрепите на вертикальной поверхности корпус БЭУ. При монтаже необходимо обеспечить минимальные расстояние 10 см между торцевыми стенками корпуса БЭУ и перегородками, стенами здания, корпусами других БЭУ и т.п. Недопустимо закрытие вентиляционных отверстий корпуса БЭУ.
Подключите кабель калитки к соответствующему разъему на корпусе БЭУ.
Подключите интерфейсный кабель (патч-корд) к соответствующему разъему на корпусе БЭУ.
Второй конец интерфейсного кабеля (патч-корда) подключите к ПДУ.
Питание БЭУ калитки осуществляется от розетки электроосветительной сети ~220В 50Гц. Наличие клемм заземления в розетке обязательно.
Включите питание. При включении питания производиться автоматический поиск положения «закрыто», во время которого запрещено механически блокировать дугу. Возможно кратковременное срабатывание электромагнита. Калитка готова к работе.
Все провода должны быть проведены под полом или надежно укрыты специальными кабель-каналами.
Сопряжение и работа соСКУД
Подключение турникета к контроллеру СКУД осуществляется в соответствии с таблицей 2 через разъем XS2 модуля IB v1.1 (см. Приложение 2).

К контакту 9 разъема XS2 модуля IB v1.1 присоединить цепь «Общий» контроллера СКУД.
Управление турникетом осуществляется по цепям «СКУД1» и «СКУД2» посредством замыкания контактов 7 или 8 разъема XS2 модуля IB v1.1 на общий провод (клемма «GND»). Сигналы, подаваемые на входы «СКУД1» и «СКУД2», должны иметь TTL-уровни. Данные сигналы также могут быть сформированы посредством нормально разомкнутых контактов реле или транзисторами, включенными по схеме открытый коллектор (открытый сток). Ток короткого замыкания указанных клемм на общий провод не превышает 1мА. Длительность подаваемых сигналов для разблокировки турникета на вход и/или выход определяется контроллером СКУД. Направление входа и выхода остаются разблокированными пока цепи «СКУД1» и/или «СКУД2» соответственно замкнуты на общий провод.
Калитка не имеет встроенных датчиков прохода человека. Для фиксации прохода необходимо использовать внешние датчики прохода, подключение которых к СКУД осуществляется согласно инструкции по эксплуатации на них. Клеммы «Ф1.НЗ», «Ф1.НР», «Ф1.общ», «Ф2.НЗ», «Ф2.НР» и «Ф2.общ» блока IB v1.1 не используются.
Правила эксплуатации
Перед включением путем визуального осмотра проверьте состояние кабелей и надежность закрепления проводов.
Не допускается прилагать усилие к дуге при запрещении прохода более 50 кг на середине дуги.
Допускается ручной останов дуги при работающем двигателе.
При эксплуатации не допускается:
- перемещение через зону прохода калитки предметов, превышающих ширину проема прохода;
- рывки и удары по преграждающей дуге и стойке, так как возможно их механическое повреждение и деформация, а также возможен преждевременный выход из строя механизма калитки.
Рекомендации по электромонтажу:
- не рекомендуется установка изделия на расстоянии менее одного метра от мощных источников электрических помех;
- пересечение всех сигнальных кабелей кабелями других силовых установок допускается только под прямым углом;
- любые удлинения сигнальных кабелей производить только методом пайки.
Монтаж изделия должен выполняться сертифицированным персоналом.
Регулировки калитки
Калитка отрегулирована на предприятии. Регулировка может потребоваться при нарушении плавности доводки дуги в крайних («открыто влево» и «открыто вправо») и среднем положениях.

Внимание! Изготовитель оставляет за собой право вносить в конструкцию калитки усовершенствования, не ухудшающие потребительских свойств, без отражения их в паспорте.
Бренд | Ростов-Дон |
Вид калитки | На мобильной платформе |
Исполнение | Уличное |
Тип калитки | Автоматическая |
Направление поворота | В обе стороны |
Пульт управления | 1 шт. в комплекте |
Материал | Нержавеющая сталь |
Напряжение питания | 180...240 В |
Источник питания | Встроенный |
Потребляемая мощность, макс. | 25 Вт |
Габариты | 832х220х1010 мм |
Ширина перекрываемого прохода | 832 мм |
Ширина прохода | 650 мм |
Вес, кг | 37 |
Материал вставки (створки) | Металл |
Рабочая температура | от -30°C до +40°C |
Средний срок службы | Не менее 8 лет |
Сертификаты | Транспортной безопасности |
Гарантия | 2 года |
Страна производства | Россия |
Функция «Быстрый заказ» позволяет покупателю не проходить всю процедуру оформления заказа самостоятельно. Вы заполняете форму, и через короткое время вам перезвонит менеджер магазина. Он уточнит все условия заказа, ответит на вопросы, касающиеся качества товара, его особенностей. А также подскажет о вариантах оплаты и доставки.
По результатам звонка, пользователь либо, получив уточнения, самостоятельно оформляет заказ, укомплектовав его необходимыми позициями, либо соглашается на оформление в том виде, в котором есть сейчас. Получает подтверждение на почту или на мобильный телефон и ждёт доставки.
Оформление заказа в стандартном режиме
Если вы уверены в выборе, то можете самостоятельно оформить заказ, заполнив по этапам всю форму.
Заполнение адреса
Выберите из списка название вашего региона и населённого пункта. Если вы не нашли свой населённый пункт в списке, выберите значение «Другое местоположение» и впишите название своего населённого пункта в графу «Город». Введите правильный индекс.
Доставка
В зависимости от места жительства вам предложат варианты доставки. Выберите любой удобный способ. Подробнее об условиях доставки читайте в разделе «Доставка».
Оплата
Выберите оптимальный способ оплаты. Подробнее о всех вариантах читайте в разделе «Оплата»
Покупатель
Введите данные о себе: ФИО, адрес доставки, номер телефона. В поле «Комментарии к заказу» введите сведения, которые могут пригодиться курьеру, например: подъезды в доме считаются справа налево.
Оформление заказа
Проверьте правильность ввода информации: позиции заказа, выбор местоположения, данные о покупателе. Нажмите кнопку «Оформить заказ».
Наш сервис запоминает данные о пользователе, информацию о заказе и в следующий раз предложит вам повторить к вводу данные предыдущего заказа. Если условия вам не подходят, выбирайте другие варианты.
Если Вы хотите узнать об условиях доставки и оплаты, но не желаете о них читать, то Вы можете позвонить любому нашему сотруднику, и он обязательно Вам поможет.
Покупка за безналичный расчет
При оплате за безналичный расчет наш сотрудник свяжется с Вами, чтобы подтвердить заказ и уточнить сроки и адрес доставки. После оформления заказа сотрудник нашей компании вышлет вам счет, по которому необходимо будет произвести оплату.
После оплаты заказа к Вам приедет наш курьер, который доставит ваш заказ.
Самостоятельно забрать заказ из пунктов самовывоза Вы можете после его оплаты по безналичному расчету. Оплата доставки до пунктов выдачи транспортных компаний производится по тарифам выбранной Вами транспортной компании непосредственно в месте получения заказа.
Самовывоз из офиса нашей компании в Зеленограде, так же возможен после предоплаты по безналичному расчету, и предварительной договоренности с менеджером.
Интернет-магазин выполняет доставку любого товара своей собственной Службой доставки.
Стоимость доставки курьером
Стоимость доставки по Москве, Все товары —750 руб., бесплатная доставка от 25000 руб
Стоимость доставки по Московской области рассчитывается для каждого заказа индивидуально и зависит от суммарного веса товаров заказа и удаленности адреса доставки.
Время доставки
Время доставки согласовывается с менеджером Службы доставки, который обязательно свяжется с вами сразу после того, как вы разместите свой заказ.
Для осуществления доставки в регионы России мы пользуемся услугами компаний СДЭК, ЖелДорЭкспедиция, Автотрейдинг, Деловые Линии. В таком случае, указанными кампаниями взимается стоимость доставки по их внутренним тарифам с заказчика при получении товара.
Самовывоз
Забрать товар самостоятельно и абсолютно бесплатно можно только по адресу: Москва, Зеленоград, Панфиловский проспект, дом 10.
Забрать товар самовывозом можно по любому из адресов самовывоза указанных здесь, стоимость доставки до пункта самовывоза рассчитывается для каждого заказа по тарифам транспортных компаний.











