Ограждение представляет собой модульную конструкцию, состоящую из стандартных секций. Каждая секция состоит из вертикальных стоек и горизонтальных поручней, и выполняется из нержавеющей стали в едином стиле с турникетами и калитками производства PERCo. Подбирая типы секций и варианты исполнения их элементов, можно сформировать ограждение любой необходимой конфигурации.
Комплект поставки:
• Односторонняя стойка PERCo-BH02 2-00 - 2 шт.
• Поручень PERCo-BH02 1-00 - 2 шт.
• Патрубок прямой хромированный PERCo-BH02 0-10 - 4 шт.
• Руководство по эксплуатации - 1 шт.
Исполнение:
• Стойки ограждения и поручни выполнены из нержавеющей стали.
• Стойки ограждения – труба диаметром 50 мм, поручни – труба диаметром 32 мм.
• Материал прямых патрубков – металл черного цвета.
• Материал поворотных патрубков – пластик черного цвета.
• Материал заполнения – тонированное стекло или поликарбонатный пластик.
Выпускается два основных типа секций:
• Стационарная секция ограждения с заполнением или без заполнения, предназначенная для ограничения зоны прохода или оформления интерьера. Заполнение может изготавливаться из тонированного стекла или полимерного материала.
• Поворотная секция ограждения, предназначенная для формирования зоны прохода и организации аварийного выхода. Имеются две модификации – поворотная секция с механическим УБ и автоматическая поворотная секция с электромагнитным УБ.
Электромагнитное УБ автоматической поворотной секции может быть разблокировано электрическим сигналом от аварийной кнопки, от системы контроля доступа или от тумблера, отключающего питание секции ограждения. При пропадании питания секция разблокируется автоматически. Створку при этом можно открыть в любую сторону. В автоматической поворотной секции с электромагнитным УБ реализована функция «Антипаника». При нажатии на створку с усилием не менее 60 кгc на ее середине створка секции открывается без применения ключей или специальных инструментов. После аварийного открытия секция не повреждается и может быть опять закрыта.
Для освобождения прохода в экстренной ситуации предусмотрена установка поворотных секций «Антипаника».
Механическая секция «Антипаника» позволяет освободить широкий проход (1,2 м) с помощью ручной разблокировки стопорного механизма. При необходимости секции «Антипаника» обеспечивают возможность проноса крупногабаритных грузов и проезда инвалидных колясок.
Ограждения серии PERCo-BH02 выполнены в едином дизайне с турникетами PERCo и легко интегрируются с ними. Более 20 типов элементов ограждений позволяют сформировать зону прохода любой необходимой конфигурации, исходя из размеров вестибюля и его планировки. Конструкция прямых и поворотных патрубков делает монтаж ограждений простым и позволяет создавать конфигурации ограждения с поворотом секций на требуемый угол.
Ограждение по устойчивости к воздействию климатических факторов внешней среды соответствует исполнению УХЛ3.1 по ГОСТ 15150-69 (эксплуатация в закрытых помещениях с естественной вентиляцией без искусственно регулируемых климатических условий). Эксплуатация ограждения разрешается при температуре окружающего воздуха от –10°C до +50°С и относительной влажности воздуха до 75% при +15°С.
Видеообзор полуростовых ограждений PERCo BH02
Основные технические характеристики:
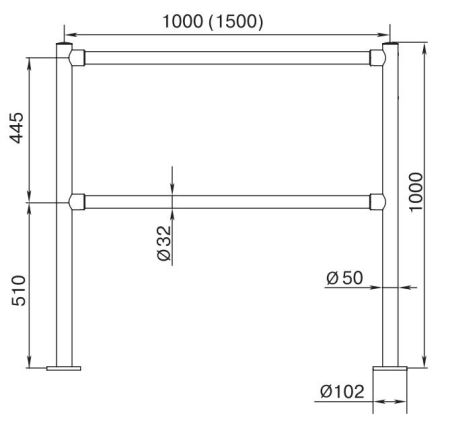
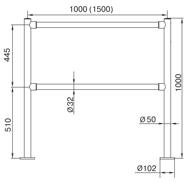
• Высота стойки ограждения, мм: 1000
• Диаметр стойки ограждения, мм: 50
• Диаметр поручня ограждения, мм: 32
• Диаметр трубы поворотной створки, мм: 32
Типы стандартных секций ограждения и их габаритные размеры показаны на рисунках 1 – 7.
Для стоек с электромагнитным УБ (PERCo-BH02 2-04/EL, PERCo-BH02 2-05/EL, PERCo-BH02 2-06/EL) автоматических поворотных секций ограждения:
• Напряжение питания постоянного тока, В: 12±1,2
• Потребляемая мощность, Вт: не более 8,5
• Источник питания должен обеспечивать значение выходного тока в номинальном режиме, А: не менее 0,7
Типы секций ограждения
На рисунках 1 – 7 представлены типы секций ограждения и их габаритные размеры. Элементы, размеры которых отмечены звездочкой, имеют несколько вариантов исполнения.


Управление электромагнитным
УБ Управление стойкой может осуществляться при помощи кнопки или устройства аварийной разблокировки.
В качестве управляющего элемента устройства аварийной разблокировки может использоваться нормально разомкнутый контакт реле или схема с открытым коллекторным выходом.
Для блокировки прохода необходимо подать напряжение питания на стойку, а контакты «Control» и «GND» замкнуть с помощью кнопки или устройства аварийной разблокировки (схема с управляющим реле) либо подать на них сигнал низкого уровня (схема с открытым коллектором). В этом случае на электромагнит через реле K1 на плате подается напряжение.
При необходимости в разблокировке прохода цепь «Control» – «GND» должна быть разомкнута (или переведена в состояние с высоким входным сопротивлением – для схемы устройства аварийной разблокировки с открытым коллектором), при этом с электромагнита снимается напряжение удержания, и проход будет разблокирован.
Внимание! Нагрев электромагнита в процессе работы не является браковочным признаком устройства (допускается нагрев электромагнита до +60ºС).
Автоматическая разблокировка электромагнитного УБ
Требования к управляющему элементу устройства аварийной разблокировки.
На выходном контакте управления платы «Control» присутствует напряжение +12В относительно «GND», омическое сопротивление цепи (обмотка реле) составляет 0,5…1,5 кОм.
Управляющий элемент устройства аварийной разблокировки должен обеспечивать следующие характеристики сигнала:
• коммутируемый ток, мА: не менее 20
• сопротивление замкнутого контакта, Ом: не более 100
• напряжение низкого уровня в схеме с открытым коллектором, В: не более 0,8
Разблокировка прохода также произойдет при пропадании напряжения питания внешнего источника независимо от состояния цепей управления «Control».
При поставке секции на клеммах управления «Control» и «GND» установлена перемычка. Для подключения устройства аварийной разблокировки ее необходимо снять.
Монтаж ограждения
Монтаж ограждения является ответственной операцией, от которой в значительной степени зависит работоспособность и срок службы изделия. До начала монтажных работ рекомендуется внимательно изучить данный раздел и в дальнейшем следовать изложенным в нем инструкциям.
Внимание! Предприятие-изготовитель не несет ответственности за повреждения ограждения и другого оборудования, а также за иной ущерб, нанесенный в результате неправильного монтажа, и отклоняет любые претензии потребителя, если монтаж выполнен с нарушением указаний, приведенных в данном руководстве.
При монтаже рекомендуется:
• выполнять работы силами не менее двух человек, имеющих квалификацию монтажника не ниже третьего разряда;
• устанавливать ограждение на прочные и ровные бетонные (бетон с характеристиками не ниже марки 400, группа прочности В22,5), каменные и т.п. основания, имеющие толщину не менее 150 мм;
• при установке ограждения на менее прочное основание применять закладные фундаментные элементы размером 300×300×300 мм;
• перед установкой ограждения проверить горизонтальность и плоскостность основания строительным уровнем и, при необходимости, выровнять его; максимальное допустимое отклонение основания от плоскостности составляет 1,5 мм;
• применять для крепления ограждения анкерные болты фирмы «SORMAT» для прочных бетонных полов.
Монтаж стационарной секции ограждения
Придерживайтесь следующей последовательности действий при монтаже ограждения.
1. Распакуйте элементы ограждения и проверьте комплект поставки.
2. На обеих стойках секции закрепите винтами М8×30 по два патрубка для крепления поручней. Винты входят в комплект поставки патрубков.
3. Поставьте первую стойку в необходимом месте на установочную поверхность таким образом, чтобы расположение патрубков соответствовало необходимому расположению поручней. Придерживая стойку, разметьте через отверстия для анкерных болтов во фланце расположение трех отверстий под анкеры на установочной поверхности. Положите стойку.
Внимание! При выполнении работ до закрепления секций ограждения будьте особенно внимательны и аккуратны, предохраняйте элементы секций от падения.
4. Подготовьте отверстия для крепления первой стойки. Вставьте анкеры на всю глубину подготовленных отверстий.
5. Закрепите первую стойку с помощью болтов, при этом усилие их затяжки должно быть предварительным, обеспечивающим возможность отклонения стойки от вертикали. Добейтесь с помощью уровня вертикального положения стойки (допускается использовать монтажные прокладки). Окончательно затяните болты.
6. Поставьте вторую стойку в необходимом месте на установочную поверхность на расстоянии длины поручней от первой. Придерживая стойку, вставьте в патрубки обеих стоек поручни. Закрепите поручни в патрубках винтами М8×6, при этом усилие затяжки винтов должно быть предварительным. Винты входят в комплект поставки патрубков. Через отверстия во фланце разметьте на установочной поверхности расположение трех отверстий под анкеры. Отверните винты, выньте поручни и положите стойку.
7. Подготовьте отверстия для крепления второй стойки. Вставьте анкеры на всю глубину подготовленных отверстий.
8. Поставьте вторую стойку над отверстиями.
9. Придерживая стойку, вставьте в патрубки обеих стоек поручни. Закрепите вторую стойку с помощью болтов, при этом усилие их затяжки должно быть предварительным, обеспечивающим возможность отклонения стойки от вертикали. Добейтесь с помощью уровня вертикального положения стойки (допускается использовать монтажные прокладки). Окончательно затяните сначала болты крепления стойки, а затем – винты крепления поручней в патрубках обеих стоек.
10.При необходимости стыковки нескольких секций их монтаж выполняйте указанным выше образом. Внимание! В случае монтажа секций с заполнением (стеклом) установку стекла производите только после того, как полностью завершена установка вертикальных стоек и поручней ограждения.
11.Для установки стекла симметрично расположите держатели на нижнем поручне на расстоянии 100÷120 мм от края вертикальной стойки.
12.Вставьте стекло в держатели. Место контакта стекла и держателя проложите резиновой прокладкой, входящей в комплект с держателем.
13.Зафиксируйте стекло в держателях, затянув винты.
14.Разверните стекло в вертикальное положение. Расположите симметрично держатели для верхней части стекла и проложите резиновой прокладкой (держатель при этом необходимо разобрать).
15.Зафиксируйте держатели со стеклом на поручне. Последующие секции ограждения со стеклом монтируются последовательно по аналогичной методике
Монтаж поворотной секции ограждения с механическим УБ
Придерживайтесь следующей последовательности действий при монтаже ограждения:
1. Разметьте центры установки стоек секции ограждения.
2. От центров разметьте точки крепления фланцев вертикальной и опорной стоек секции ограждения к установочной поверхности, как показано на рис. 11 и 13 – две группы по три отверстия Ø16×65 под анкеры.
3. На опорной стойке двумя винтами М8×25 закрепите две серьги шарниров.
4. Установите в рабочее положение и закрепите болтами М10 опорную стойку. Соберите шарнирные узлы со створкой на опорной стойке.
5. Установите в рабочее положение вертикальную стойку. Отверстие в стойке должно быть ориентировано в направлении створки с УБ.
6. Отожмите шток за ручку. После поворота преграждающей створки в положение закрытия прохода ручка отпускается и при этом шток фиксирует створку в соответствующем пазу вертикальной стойки.
7. Последующие секции ограждения монтируются последовательно по аналогичной методике.
Монтаж автоматической поворотной секции ограждения с электромагнитным УБ
Придерживайтесь следующей последовательности действий при монтаже ограждения.
1. Разметьте центры установки стоек секции ограждения. Для нормальной работы электромагнитного УБ необходимо обеспечить расстояние между стойками 1105±2 мм – для секции ограждения с шириной прохода 1 м и 1305±2 мм – для секции ограждения с шириной прохода 1,2 м.
2. От центров разметьте точки крепления фланцев стоек секции ограждения, как показано на рис. 11 и 13 – две группы по три отверстия Ø16×70 под анкеры.
3. Подготовьте в полу кабельный канал для проводов цепи питания и управления.
4. Закрепите на опорной стойке двумя винтами М8×25 две серьги шарниров. Установите в рабочее положение опорную стойку. Для обеспечения вертикальности установки стоек рекомендуется использовать монтажные прокладки 50×20×0,5…0,8 мм.
5. Соберите шарнирные узлы со створкой на опорной стойке.
6. Извлеките плату, расположенную в нижней части стойки (внутри трубы). Плата крепится на подпружиненных зажимах и легко вынимается.
7. Подключите провода цепей питания и управления к плате согласно схеме электрических соединений.
8. Установите стойку с электромагнитным УБ предварительно в рабочее положение.
9. Последующие секции ограждения монтируются последовательно по аналогичной методике.
10.Проверьте все резьбовые соединения ограждения и при необходимости подтяните их.
11.Ограждение установлено.
Бренд | PERCo |
Вид товара | Ограждение |
Вид ограждения | Полуростовое |
Исполнение | Для помещений |
Тип ограждения | Стационарное |
Материал | Нержавеющая сталь |
Габариты | 1000х1000х50 мм |
Материал вставки (створки) | Без вставки |
Рабочая температура | от -10°C до +40°C |
Гарантия | 5 лет |
Страна производства | Россия |
Функция «Быстрый заказ» позволяет покупателю не проходить всю процедуру оформления заказа самостоятельно. Вы заполняете форму, и через короткое время вам перезвонит менеджер магазина. Он уточнит все условия заказа, ответит на вопросы, касающиеся качества товара, его особенностей. А также подскажет о вариантах оплаты и доставки.
По результатам звонка, пользователь либо, получив уточнения, самостоятельно оформляет заказ, укомплектовав его необходимыми позициями, либо соглашается на оформление в том виде, в котором есть сейчас. Получает подтверждение на почту или на мобильный телефон и ждёт доставки.
Оформление заказа в стандартном режиме
Если вы уверены в выборе, то можете самостоятельно оформить заказ, заполнив по этапам всю форму.
Заполнение адреса
Выберите из списка название вашего региона и населённого пункта. Если вы не нашли свой населённый пункт в списке, выберите значение «Другое местоположение» и впишите название своего населённого пункта в графу «Город». Введите правильный индекс.
Доставка
В зависимости от места жительства вам предложат варианты доставки. Выберите любой удобный способ. Подробнее об условиях доставки читайте в разделе «Доставка».
Оплата
Выберите оптимальный способ оплаты. Подробнее о всех вариантах читайте в разделе «Оплата»
Покупатель
Введите данные о себе: ФИО, адрес доставки, номер телефона. В поле «Комментарии к заказу» введите сведения, которые могут пригодиться курьеру, например: подъезды в доме считаются справа налево.
Оформление заказа
Проверьте правильность ввода информации: позиции заказа, выбор местоположения, данные о покупателе. Нажмите кнопку «Оформить заказ».
Наш сервис запоминает данные о пользователе, информацию о заказе и в следующий раз предложит вам повторить к вводу данные предыдущего заказа. Если условия вам не подходят, выбирайте другие варианты.
Если Вы хотите узнать об условиях доставки и оплаты, но не желаете о них читать, то Вы можете позвонить любому нашему сотруднику, и он обязательно Вам поможет.
Покупка за безналичный расчет
При оплате за безналичный расчет наш сотрудник свяжется с Вами, чтобы подтвердить заказ и уточнить сроки и адрес доставки. После оформления заказа сотрудник нашей компании вышлет вам счет, по которому необходимо будет произвести оплату.
После оплаты заказа к Вам приедет наш курьер, который доставит ваш заказ.
Самостоятельно забрать заказ из пунктов самовывоза Вы можете после его оплаты по безналичному расчету. Оплата доставки до пунктов выдачи транспортных компаний производится по тарифам выбранной Вами транспортной компании непосредственно в месте получения заказа.
Самовывоз из офиса нашей компании в Зеленограде, так же возможен после предоплаты по безналичному расчету, и предварительной договоренности с менеджером.
Интернет-магазин выполняет доставку любого товара своей собственной Службой доставки.
Стоимость доставки курьером
Стоимость доставки по Москве, Все товары —750 руб., бесплатная доставка от 25000 руб
Стоимость доставки по Московской области рассчитывается для каждого заказа индивидуально и зависит от суммарного веса товаров заказа и удаленности адреса доставки.
Время доставки
Время доставки согласовывается с менеджером Службы доставки, который обязательно свяжется с вами сразу после того, как вы разместите свой заказ.
Для осуществления доставки в регионы России мы пользуемся услугами компаний СДЭК, ЖелДорЭкспедиция, Автотрейдинг, Деловые Линии. В таком случае, указанными кампаниями взимается стоимость доставки по их внутренним тарифам с заказчика при получении товара.
Самовывоз
Забрать товар самостоятельно и абсолютно бесплатно можно только по адресу: Москва, Зеленоград, Панфиловский проспект, дом 10.
Забрать товар самовывозом можно по любому из адресов самовывоза указанных здесь, стоимость доставки до пункта самовывоза рассчитывается для каждого заказа по тарифам транспортных компаний.

















































