PERCo-ST-01 с распашными створками PERCo-ATG-425 имеет увеличенную ширину прохода. Увеличенная ширина прохода позволяет организовать проезд инвалидных колясок, а также дополнительный выход в случае чрезвычайной ситуации.
Так же PERCo-ST-01 может быть оснащен створками PERCo-ATG-300 со стандартной шириной прохода 650 мм. При проходе створки турникета распахиваются.
Комплект поставки:
• Секция PERCo-ST-01/M (Master) с крышкой и монтажным комплектом: 1 шт.
• Секция PERCo-ST-01/S (Slave) с крышкой и монтажным комплектом: 1 шт.
• Створки стеклянная PERCo-ATG-425: 2 шт.
• Крышки из закаленного стекла PERCo-STС-01G: 2 шт.
• ПДУ с кабелем: 1 шт.
• Паспорт и руководство по эксплуатации: 1 экз.
В комплект не входят и приобретаются отдельно:
• Блок питания LRS-150-24 стабилизированный (на каждую секцию)
При необходимости увеличения количества зон прохода предусмотрена возможность установить двусторонние секции PERCo-STD-01. Каждая двусторонняя секция позволяет организовать одну дополнительную зону прохода.
Система слежения снабжена двумя уровнями инфракрасных датчиков, 14 шт расположены на верхнем уровне и 28 на нижнем, что гарантирует безопасность прохода при высокой пропускной способности, а также защиту от прохода двух и более человек одновременно.
При подаче сигнала аварийной разблокировки или при отключении питания створки разблокируются.
Турникет может работать как автономно, от пульта управления или устройства радиоуправления, так и под управлением системы контроля доступа.
В комплект поставки входит проводной пульт ДУ, ориентация кнопок пульта относительно направлений прохода задается при подключении к турникету.
Индикация направления прохода расположена на торцах корпусов стоек турникета. Индикация состояния турникета (открыто/закрыто) размещена на крышках стоек.
Внутри стойки турникета предусмотрена возможность установки считывателей карт доступа производства компании PERCo.
Возможна установка считывателей сторонних производителей, соответствующих следующим техническим характеристикам:
• габаритные размеры (длина × ширина × высота), мм: не более 155×68×28
Изделие обеспечивает контроль прохода в двух направлениях, режим работы может быть задан независимо для каждого направления.
Видеообзор турникета PERCo-ST-01 “Скоростной проход“
Поддерживаемые режимы работы:
• запрет прохода в обоих направлениях,
• однократный проход в одном и запрет прохода в другом направлении,
• поочередный однократный проход в обоих направлениях,
• свободный проход в одном направлении и запрет прохода в другом,
• свободный проход в одном направлении и однократный проход в другом,
• свободный проход в обоих направлениях.
Изделие является нормально открытым устройством. При выключении питания створки прохода разблокированы и свободно открываются вручную в любом направлении.
Основные технические характеристики
• Напряжение питания постоянного тока1 , В: 24±2,4
• Ток потребления2 , А: не более 6,5
• Потребляемая мощность2 , Вт: не более 160
• Пропускная способность в режиме однократного прохода, чел/мин: до 60
• Ширина зоны прохода, мм:
- со створкой PERCo-ATG-300, PERCo-ATG-300H: 650
- со створкой PERCo-ATG-425: 900
• Количество установленных ДКЗП, шт.:
- верхний уровень:14
- нижний уровень: 28
• Длина кабеля ПДУ3 , м: не менее 6,6
• Степень защиты оболочки: IP41 по EN 60529
• Класс защиты от поражения электрическим током: III по ГОСТ Р МЭК335-1-94
• Средняя наработка на отказ, проходов: не менее 5 000 000
• Средний срок службы, лет: не менее 8
• Габаритные размеры турникета4 (длина × ширина × высота), мм:
- со створкой PERCo-ATG-300: 1820×1050×1010
- со створкой PERCo-AТG-300H: 1820×1050×1300
- со створкой PERCo-ATG-425: 1820×1300×1010
Примечание: Общая ширина турникетов при организации нескольких зон прохода рассчитывается по формуле:
Lобщ= 920 n + 1170 m +130 (мм), где:
- n – количество установленных комплектов створок PERCo-ATG-300 и PERCo-ATG-300H;
- m – количество установленных комплектов створок PERCo-ATG-425.
• Масса (нетто), кг:
- секция PERCo-ST-01/M: не более 85
- секция PERCo-ST-01/S: не более 85
- секция двусторонняя PERCo-STD-01: не более 100
- створка PERCo-ATG-300: не более 6
- створка PERCo-ATG-300Н: не более 9
- створка PERCo-ATG-425: не более 8 1
1 ИП подключается только к плате управления, расположенной в секции Master турникета (на стороне Master двусторонней секции) и имеющей маркировку «ST-01.771».
2 Ток потребления и мощность потребления указаны для каждого изделия PERCo-ST-01 и PERCo-STD-01 в отдельности.
3 Максимальная длина кабеля ПДУ – 40 м (поставляется под заказ).
4 Габаритные размеры турникета при установке различных моделей створок показаны на рис. 1, 2, 3, 4.


Видеоинструкция по установке PERCo-ST-01
Основные особенности
• Основной особенностью турникета является возможность совершения однократных проходов пользователей в одном направлении без закрытия створок между проходами.
• Турникет является нормально открытым устройством, то есть при отключении источника питания створки свободно поворачиваются на угол ±90º.
• По всей длине зоны прохода турникета установлены датчики контроля зоны прохода, расположенные в двух уровнях. Это позволяет отслеживать положение пользователя внутри зоны прохода, а также позволяет одновременно находиться в зоне прохода нескольким пользователям, совершающим проход в одном направлении.
• При заказе турникета предусмотрена возможность выбора модели створки, в зависимости от ширины зоны прохода и особенностей эксплуатации.
• При необходимости количество зон прохода через турникет может быть увеличено установкой двусторонних секций PERCo-STD-01.
• При организации нескольких зон прохода торцевые блоки индикации позволяют пользователю при подходе к турникету заранее правильно выбрать зону для прохода в нужном направлении.
• Турникет поддерживает два режима управления: импульсный и потенциальный.
• Имеется возможность перевести турникет в режим «Автоматическое открытие в выбранном направлении» – створки автоматически открываются при входе в турникет в заранее выбранном направлении и закрываются после прохода.
• Во всех режимах работы турникет выдает сигнал тревоги, если зона прохода занята более 30 с.
• Возможна работа турникета как в качестве исполнительного устройства в составе СКУД, так и автономная работа при управлении оператором от пульта дистанционного управления.
• Предусмотрена возможность установки считывателей бесконтактных карт доступа внутри секций под стеклянной крышкой. Крышка секции снабжена блоком (блоками) индикации, в состав которого входят индикатор разрешения прохода и индикатор зоны предъявления карт доступа.
• Предусмотрена возможность регулировки положения створок в исходном (закрытом) состоянии (режим обучения).
• Блоки индикации запрещения / разрешения прохода на центральной стойке находятся в зоне прямой видимости пользователя при совершении им прохода через турникет. Это позволяет не отвлекаться на поиск других блоков индикации и ускоряет проход пользователя через турникет.
• Предусмотрена возможность подключения выносных блоков индикации для дублирования индикации разрешения / запрещения прохода.
• Предусмотрена возможность подключения к турникету звукового оповещателя (сирены) для предупреждения оператора о попытках совершения несанкционированного прохода.
• Предусмотрена возможность автоматического аварийного открытия прохода при подаче команды Fire Alarm. Команда Fire Alarm может быть подана прибором охранной пожарной сигнализации или оператором при помощи аварийной кнопки (далее – устройство аварийного открытия прохода).
• Детали турникета выполнены из шлифованной нержавеющей стали. Створки и стекло заполнения выполнены из закаленного стекла толщиной 8 – 10 мм.
• Турникет является нормально открытым устройством, то есть при отключении источник питания створки свободно поворачиваются на угол ±90º.
Устройство турникета
Турникет состоит из двух секций, Master и Slave, а также пульта дистанционного управления. На каждой секции установлена поворотная створка (1), приводимая в движение электроприводом. Секция Slave подключается к секции Master с помощью двух соединительных кабелей (19, 20).
Для увеличения количества зон прохода необходима установка двусторонних секций. Двусторонняя секция комплектуется пультом дистанционного управления. На ней установлены две поворотные створки (1): на стороне Master и стороне Slave. Каждая створка приводится в движение своим электроприводом. Сторона Slave подключается к секции Master турникета или к стороне Master другой двусторонней секции с помощью двух соединительных кабелей (19, 20). К стороне Master подключается секция Slave турникета (сторона Slave следующей двусторонней секции) c помощью двух соединительных кабелей (21, 22) из комплекта поставки этого турникета (двусторонней секции).

Секция
Каждая секция состоит из трех стоек: центральной (2) и двух боковых (7). Стойки соединены между собой верхним коробом (12) и двумя нижними коробами (15). Сверху на секцию установлена стеклянная крышка (10), закрывающая верхний короб. Нижние короба закрыты крышками (14).
Пространство между стойками перекрыто стеклом заполнения (13), предотвращающим несанкционированное проникновение в зону прохода. Болты крепления стекла заполнения к центральной стойке закрыты задней панелью центральной стойки (6), к боковым стойкам – передними панелями (8).
Стеклянная крышка секции снабжена блоком (блоками) индикации (11), в состав которого входят индикатор разрешения прохода (в виде зеленой стрелки) и индикатор зоны предъявления карт доступа (в виде пиктограммы «рука с картой»).
На боковых стойках расположены торцевые блоки индикации (9) с индикатором, указывающим на направление или на запрет прохода (в виде белой стрелки или красного креста).
В верхней части центральной стойки (2) расположен блок индикации (3) с прямоугольными цветовыми индикаторами разрешения / запрещения прохода. На поворотной опоре центральной стойки закреплена створка (1). Поворотная опора закрыта кожухом створки (4). Поворотную опору приводит в движение электропривод, расположенный под кожухом центральной стойки (5).
В нижней части центральной стойки секции (стороны) Master установлена плата управления турникета PERCo-ST-01.771 (далее – плата управления). К плате управления подключаются источник питания, пульт дистанционного управления (приемник радиоуправления), устройство Fire Alarm, а также соединительные кабели от секции Slave

Блоки индикации
На каждой секции турникета установлены следующие блоки индикации:
• Блок индикации на крышке (11) включает в себя белый индикатор (рука с картой), указывающий зону предъявления карты доступа, и зеленый индикатор (стрелку), загорающийся при разрешении прохода в данном направлении: – зеленый индикатор разрешения прохода – белый индикатор, указывающий место предъявления карты
• Блок индикации центральной стойки (3) предназначен для цветовой индикации разрешения (зеленый цвет) и запрещения (красный цвет) прохода, отдельно для каждого направления.
• Торцевой блок индикации (9) на боковой стойке предназначен для указания направления прохода через турникет. На нем отображается постоянная индикация: либо белая стрелка, либо красный крест: – красный индикатор запрещения прохода – белый индикатор, указывающий направление прохода
Тип индикации торцевого блока выбирается при установке турникета путем переключения соединительного кабеля торцевого блока индикации к соответствующему разъему модуля управления индикацией (находится под крышкой турникета на защитной пластине). При производстве соединительный кабель подключен к разъему ARROW, что соответствует отображению белой стрелки. Для доступа к модулю управления индикацией необходимо снять стеклянную крышку (10).
Режимы управления турникетом
Доступны два режима управления турникетом – импульсный и потенциальный. В обоих режимах управление турникетом осуществляется подачей команд (то есть комбинации управляющих сигналов) на входы управления: Unlock A, Stop и Unlock B и специальный вход управления Fire Alarm. В зависимости от выбранного режима меняется алгоритм подачи команд управления.
Выбор режима управления осуществляется переключателем Pulse на плате управления турникетом (см. рис. 8). При поставке переключатель находится в положении ON, что соответствует импульсному режиму управления турникетом.
Внимание! Изменение положения переключателя должно осуществляться только при выключенном питании турникета.
Для перевода турникета в потенциальный режим управления переведите переключатель в положение OFF. Изменение режима управления произойдет после включения турникета.
Импульсный режим управления
Режим используется для управления турникетом с помощью пульта дистанционного управления, устройства радиоуправления и контроллера СКУД, выходы которого поддерживают импульсный режим управления.
Длительность управляющего сигнала при подаче команды управления на входы управления должна быть не менее 100 мс. Время ожидания прохода по умолчанию равно 8 секундам и не зависит от длительности управляющего сигнала (импульса).
Алгоритм подачи команд управления, являющихся комбинацией управляющих сигналов, приведен в приложении 1. Командой управления является активный фронт управляющего сигнала (переход сигнала из высокого уровня в низкий) на любом из входов управления (Unlock A, Unlock B и Stop), при наличии соответствующих уровней сигналов на других входах.
Примечание: При подаче управляющих сигналов от пульта дистанционного управления / устройства радиоуправления активному фронту сигнала соответствует нажатие соответствующей кнопки на пульт дистанционного управления. Низкому уровню сигнала соответствует нажатое состояние кнопки, высокому – не нажатое.
Потенциальный режим управления
Режим используется для управления турникетом с помощью контроллера СКУД, выходы которого поддерживают потенциальный режим управления.
Длительность управляющего сигнала при подаче команды управления на входы управления, должна быть не менее 100 мс. Время ожидания прохода равно длительности управляющего сигнала. То есть, если к моменту совершения прохода в разрешенном направлении на входе данного направления присутствует сигнал низкого уровня, то турникет в данном направлении останется открытым.
При подаче сигнала низкого уровня на вход Stop оба направления закрываются на все время его присутствия независимо от уровней сигналов на входах Unlock A и Unlock B. При снятии сигнала низкого уровня с входа Stop направления переходят в режим согласно уровням сигналов на входах Unlock A и Unlock B.
Примечание: При управлении турникетом контроллером СКУД высокий уровень управляющего сигнала соответствует тому, что контакты выходного реле контроллера разомкнуты либо выходной транзистор закрыт. Низкий уровень – контакты выходного реле замкнуты либо выходной транзистор открыт.
Алгоритм работы турникета
Алгоритм работы турникета при импульсном режиме управления в случае однократного прохода в одном из направлений:
1. От устройства управления (пульт дистанционного управления, устройства радиоуправления, контроллера СКУД) на входы платы управления поступает команда (комбинация управляющих сигналов) на совершение однократного прохода в одном из направлений.
2. Микроконтроллер, установленный на плате управления, обрабатывает полученную комбинацию сигналов и формирует команду электроприводу створок турникета на открытие зоны прохода. Начинается отсчет Времени удержания в разблокированном состоянии (по умолчанию 8 секунд).
3. Створки турникета открываются в выбранном направлении. Становится возможным проход в этом направлении.
4. При входе пользователя в зону прохода фиксируется факт прохода. На 250 мс активизируется один из релейных выходов PASS А или PASS B, соответствующий направлению прохода. Положение пользователя в зоне прохода отслеживается с помощью датчиков контроля зоны прохода.
Примечание: Для предотвращения контакта пользователя со створками турникета внутри зоны прохода выделяется опасная зона. При нахождении пользователя в этой зоне движение створок (открытие или закрытие) блокируется. Величина опасной зоны зависит от размера установленных створок.
5. После того как пользователь пройдет через раскрытые створки и окажется в безопасной зоне (то есть в зоне, где не возможен контакт пользователя со створками), микроконтроллер платы управления подает команду электроприводу на закрытие створок. Створки турникета закроются.
6. Если во время движения пользователя через зону прохода был авторизован новый пользователь в том же направлении прохода, то закрытия створок не происходит, новый пользователь может сразу следовать за первым.
7. Если во время движения пользователя через зону прохода был авторизован новый пользователь в противоположном направлении прохода, то после прохода первого пользователя створки закроются и откроются в противоположном направлении для прохода второго пользователя.
Примечание: Для повышения интенсивности проходов рекомендуется организовывать отдельные зоны прохода для каждого направления. Направления прохода могут быть указаны для каждой зоны прохода на торцевых блоках индикации при монтаже турникета.
8. Если пользователь не войдет в зону прохода в течение Времени удержания в разблокированном состоянии, то створки перекроют зону прохода.
9. По окончании прохода и после закрытия створок турникет готов для совершения следующего прохода. При потенциальном режиме управления турникетом управляющий сигнал может быть снят после получения сигнала с выхода PASS для того же направления.
Устройства для управления турникетом
Управление турникетом может осуществляться с помощью следующих устройств: пульта дистанционного управления / устройства радиоуправления, контроллера СКУД, устройства Fire Alarm. Указанные устройства могут быть подключены к турникету по отдельности, все вместе (параллельно) или в любой комбинации друг с другом.
При параллельном подключении к турникету нескольких устройств управления возможны случаи наложения управляющих сигналов. В этом случае реакция турникета будет соответствовать команде, сформированной комбинацией сигналов.
Пульт дистанционного управления
Пульт дистанционного управления(17) выполнен в виде небольшого настольного прибора в корпусе из ударопрочного АБС-пластика. Пульт дистанционного управления предназначен для подачи команд оператором при ручном режиме управления турникетом.
На лицевой панели пульта дистанционного управления расположены три кнопки для подачи команд. Средняя кнопка STOP предназначена для подачи команды «Запрет прохода». Левая и правая кнопки LEFT, RIGHT предназначены для подачи команды открытия прохода в выбранном направлении. Над кнопками расположены светодиодные индикаторы состояния направления прохода. Красный индикатор «Stop» указывает на то, что оба направления прохода закрыты..

Подключение пульта дистанционного управления
Пульт дистанционного управления подключается гибким многожильным кабелем к контактам Unlock A, Stop, Unlock B, Led A, Led Stop, Led B, Sound и GND клеммной колодки X2 в соответствии со схемой электрических соединений турникета.
Примечания:
• При работе турникета в составе СКУД рекомендуется подключать пульт дистанционного управления к контроллеру СКУД в соответствии с эксплуатационной документацией контроллера.
• Устройство радиоуправления подключается к контактам Unlock A, Stop, Unlock B и GND клеммной колодки X2 и к контакту +12V клеммной колодки X3.
Устройство Fire Alarm
Подключение устройства для аварийного открытия прохода Fire Alarm производится к входу Fire Alarm (контактам Fire Alarm и GND клеммной колодки X2) платы управления в соответствии со схемой электрических соединений турникета. Если вход Fire Alarm не используется, то между контактами Fire Alarm и GND платы управления необходимо установить перемычку проводом. При поставке данная перемычка установлена. При подаче управляющего сигнала на вход Fire Alarm турникет переходит в режим Fire Alarm, при этом:
• Створки турникета открываются в направлении, выбранном с помощью переключателя FA_Dir.
• На блоках индикации крышки и центральной стойки одновременно для обоих направлений включаются зеленые индикаторы разрешения прохода в режиме мигания с периодом 1,25 сек.
• Все поступающие команды управления турникетом игнорируются.
Если управляющий сигнал на вход Fire Alarm поступает во время совершения прохода, то турникет сразу переходит в режим Fire Alarm, створки при этом остаются открытыми до снятия сигнала. После снятия управляющего сигнала автоматически подается команда «Запрет прохода», створки турникета закрываются.
Управление турникетом от СКУД
Турникет может использоваться в качестве исполнительного устройства при работе в составе СКУД. В турникете предусмотрена возможность установки встроенных бесконтактных считывателей карт доступа под стеклянной крышкой. Выходы контроллера СКУД подключаются к контактам Unlock A, Stop, Unlock B и GND клеммной колодки X2. Входы контроллера СКУД подключаются к контактам PASS A, PASS B и Common клеммной колодки X3. Подключение производится в соответствии со схемой электрических соединений турникета.
Монтаж турникета
При монтаже турникета соблюдайте меры безопасности, указанные в Руководстве пользователя.
Монтаж турникета является ответственной операцией, от которой в значительной степени зависит работоспособность и срок службы изделия. Монтаж должен выполняться силами не менее двух человек, имеющих квалификации монтажника и электрика не ниже 3-го разряда. До начала монтажных работ необходимо внимательно изучить данный раздел и в дальнейшем следовать изложенным в нем инструкциям.
Внимание!
Предприятие-изготовитель не несет ответственности за ущерб, нанесенный в результате неправильного монтажа, и отклоняет любые претензии, если монтаж выполнен не в соответствии с указаниями, приводимыми в настоящем руководстве по эксплуатации.
Особенности монтажа
Внимание! При установке секций турникета необходимо оставлять зазор не менее 70 мм между задней стенкой секции и стеной для обеспечения возможности демонтажа задней панели центральной стойки.
Рекомендации по подготовке установочной поверхности:
• Секции турникета необходимо устанавливать на прочные и ровные бетонные (не ниже марки 400, группа прочности В22,5), каменные и т.п. основания, имеющие толщину не менее 150 мм.
• Установочную поверхность необходимо выровнять так, чтобы все точки крепления секции турникета лежали в одной горизонтальной плоскости (контролировать с помощью уровня).
• При установке секции турникета на менее прочное основание необходимо применять закладные фундаментные элементы размером не менее 450×450×200 мм.
Порядок монтажа
При монтаже придерживайтесь следующей последовательности действий:
1. Произведите монтаж источника питания на отведенное для него место в соответствии с инструкцией, приведенной в его эксплуатационной документации.
Внимание!
• При перемещении секции турникета запрещено держать ее за стеклянную крышку (10).
• Установку и крепление секций турникета производите после прокладки всех кабелей в кабельных каналах и внутри секций.
• При демонтаже деталей секций турникета до закрепления секций на установочной поверхности будьте особенно внимательны и предохраняйте секции от падения, а детали секций от повреждения.
2. Определите места установки секций Master и Slave, при необходимости – места установки двусторонних секций. При этом необходимо учитывать правило взаимного расположения секций: против створки секции (стороны двусторонней секции) Master всегда должна располагаться створка секции (стороны двусторонней секции) Slave.
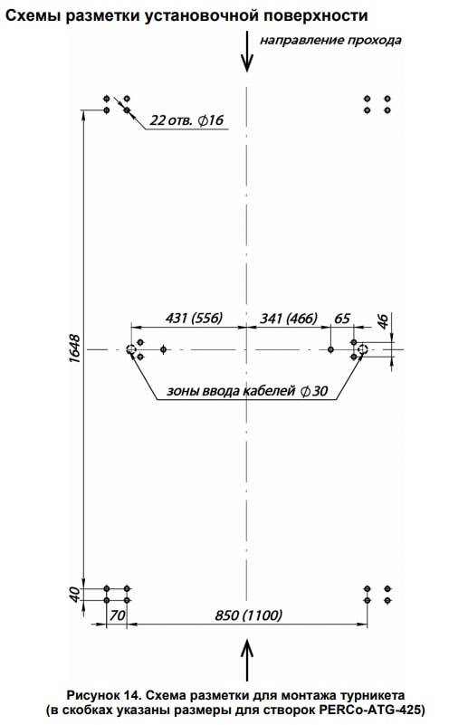
3. В соответствии со схемами, и с учетом проекта проходной произведите разметку и разделку отверстий на установочной поверхности под гильзы анкеров для крепления турникета и двусторонних секций. Для разделки отверстий используйте сверло твердосплавное Ø16. Глубина сверления при использовании стандартных анкеров PFG IH10 – 65 мм. В отверстия вставьте гильзы анкеров так, чтобы они не выступали над поверхностью пола.


4. Подготовьте в полу кабельные каналы:
• каналы для подводки кабелей от внешних устройств (источника питания, пульт дистанционного управления или контроллера СКУД, устройства Fire Alarm и др.) – к отверстиям для ввода в секцию Master и для ввода в сторону Master двусторонней секции;
• каналы, соединяющие отверстия для ввода кабелей противоположных секций (сторон двусторонней секции) одной зоны прохода – для подводки соединительных кабелей DC и CAN.
Внимание! Зоны прохода, ограниченные односторонними секциями и / или сторонами двусторонних секций, представляют собой отдельные функциональные устройства, не связанные непосредственно между собой. Стороны Master и Slave одной двусторонней секции электрически независимы, так как относятся к разным зонам прохода.
5. В кабельных каналах проложите кабели от внешних устройств к местам установки секций. Также в кабельном канале между противоположными секциями (сторонами секций) каждого прохода проложите кондуктор (гибкий провод) для протяжки кабелей DC и CAN от секции (стороны секции) Slave к секции (стороне секции) Master. Примечание: Если нет возможности использовать способ протяжки кабелей кондуктором, при необходимости кабели DC и CAN можно проложить сразу, до начала установки секций. Данные кабели находятся в центральной стойке секции (стороны секции) Slave внизу под кожухом. Для этого необходимо распаковать секцию Slave, снять кожух с центральной стойки, вынуть кабели DC и CAN и отсоединить их от платы управления приводом. На концах жил кабелей имеются маркеры с номерами, соответствующими схеме соединений.
6. Распакуйте секцию Master турникета (ящик №1, PERCo-ST-01/M). Работайте вдвоем! Взяв секцию под верхний короб (не за края стеклянной крышки!), аккуратно выньте ее из ящика.
7. Снимите стеклянную крышку, закрепленную на секции с помощью стяжек нераскрывающихся, и уложите ее на ровную устойчивую поверхность.
Внимание! Будьте аккуратны! В процессе дальнейшего монтажа не уроните крышку, не повредите стекло и пленку на внутренней поверхности крышки.
8. Произведите демонтаж деталей секции турникета в следующем порядке:
• Снимите кожух центральной стойки (5).
• Демонтируйте передние панели обеих боковых стоек (8), предварительно отсоедините от торцевого блока индикации соединительный кабель.
9. Установите секцию турникета на гильзы анкеров. Работайте вдвоем!
10. Через отверстие для ввода кабелей в основании центральной стойки секции Master введите внутрь стойки кабели: от источника питания (16), от пульт дистанционного управления (17), от устройства Fire Alarm (18) и дополнительного оборудования, а также кабели DC (19) и CAN (20) от секции (стороны секции) Slave или же кондуктор для их протяжки.
11. Используя торцевой ключ-трещотку, закрепите секцию на установочной поверхности с помощью одиннадцати болтов М10 с шайбами. Одновременно с помощью уровня добейтесь вертикального положения секции турникета. Отклонение секции от вертикали в продольной плоскости не должно превышать 0,5º. Допускается использование монтажных прокладок.
Примечание: Пункты 12-16 выполняются в случае, если устанавливаются дополнительные двухсторонние секции PERCo-STD-01.
12. Распакуйте и установите двустороннюю секцию. Выполните действия, указанные в п.п. 7 - 9 (для обеих сторон секции), сориентируйте двустороннюю секцию так, чтобы ее сторона Slave находилась против установленной секции Master.
13. Выньте из центральной стойки двусторонней секции со стороны Slave соединительные кабели DC и CAN (если они не были проложены в кабель- канале ранее). Выведите их через отверстие для ввода кабелей в основании стойки. Протяните кабели при помощи ранее проложенного кондуктора по кабельному каналу в секцию Master. 14. Через отверстие для ввода кабелей в основании центральной стойки двусторонней секции (со стороны Master) введите внутрь стойки кабели для управления второй зоной прохода: от источника питания, от пульта дистанционного управления или контроллера СКУД, от устройства Fire Alarm и дополнительного оборудования, а также кабели DC (19) и CAN (20) от секции (стороны секции) Slave или же кондуктор для их протяжки.
15. Добейтесь вертикального положения двусторонней секции и закрепите ее на установочной поверхности с помощью 14-ти болтов М10 с шайбами (см. п. 11).
16. При необходимости установите другие двухсторонние секции (п.п. 12 - 15).
17. Распакуйте и установите секцию турникета Slave. Выполните действия, указанные в п.п. 7 - 9.
18. Выньте из центральной стойки секции Slave соединительные кабели DC и CAN (если они не были проложены в кабель-канале ранее). Выведите их через отверстие для ввода кабелей в основании стойки. Протяните кабели при помощи ранее проложенного кондуктора по кабельному каналу в секцию (сторону секции) Master.
19. Добейтесь вертикального положения секции и закрепите ее на установочной поверхности (см. п. 11).
20. Подключите кабели к плате управления первой зоны прохода согласно схеме электрических соединений турникета (см. рис. 8 и рис. 17). Плата расположена в нижней части центральной стойки секции Master.
Примечание: Соединительные кабели DC (2) и CAN (4) подключаются к клеммным колодкам X5 платы управления секции Master и X1 платы привода секции Slave в соответствии с маркировкой их жил.
21. При необходимости произведите монтаж считывателей карт доступа на предусмотренные для этого полки, расположенные внутри верхнего короба на торцах стойки под блоками индикации крышки. Для фиксации считывателей используйте двусторонний скотч. Кабели от считывателей аккуратно проведите через верхний короб и центральную стойку к месту ввода кабеля от контроллера СКУД, используя штатные окна в деталях корпуса секции. Кабели не должны проходить между отверстиями для крепления стеклянной крышки секции и вблизи них, чтобы не повредить кабели при установке крышки. Для крепления кабелей применяйте самоклеящиеся площадки и кабельные стяжки. Не допускается крепление к кабелям внутренней разводки и к платам датчиков контроля зоны прохода, а также прокладывание кабелей вблизи плат, где расположены датчики.
Внимание! Внутри стойки турникета предусмотрена возможность установки считывателей карт доступа производства компании PERCo. Возможна установка считывателей сторонних производителей, соответствующих следующим техническим характеристикам: габаритные размеры (длина × ширина × высота), мм . не более 155×68×28 дальность считывания идентификаторов, мм: не менее 40
22. Распакуйте стеклянные створки (1) и произведите их монтаж.
23. Установите кожухи створок (4) из комплекта принадлежностей.
24. Установите на свои места передние панели боковых стоек (8) (разд. 8.9.2). После установки проверьте, чтобы верхний край панелей находился на одном уровне с корпусом секции. Панель с торцевым блоком индикации устанавливается с того края секции, где находится модуль управления индикацией, который закреплен на одной из двух стальных защитных пластин в верхнем коробе. При этом к торцевому блоку индикации необходимо подсоединить соответствующий соединительный кабель от модуля управления индикацией. Для отображения на торцевом блоке индикации белой стрелки соединительный кабель должен быть подключен к разъему ARROW модуля управления индикацией, для отображения красного креста – к разъему CROSS.
25. Установите блоки индикации центральных стоек (3) (взять в комплекте принадлежностей).
26. Установите крышки стеклянные (10).
27. С помощью переключателей на плате управления секции (стороны секции) Master (см. разд. 5.2.4):
• Установите режим управления турникетом, используя переключатель Pulse.
• Выберите направление поворота створок при подаче сигнала от устройства Fire Alarm, используя переключатель FA Dir.
• Установите тип створок, устанавливаемых в данном проходе, используя переключатели Size1, Size2.
28. Проведите пробное включение турникета.
29. При необходимости выровнять положение створок относительно друг друга переведите турникет в режим обучения и вручную установите створки в исходное (закрытое) положение.
30. Выполните проверку работы турникета, подавая команды управления от пульта дистанционного управления.
31. Проведите операции, аналогичные указанным в п.п. 20 – 30, для всех остальных зон прохода турникета.
32. Установите кожухи центральных стоек (5) (разд. 8.9.1). После завершения монтажа и проведения проверок турникет готов к работе.
Эксплуатация
При эксплуатации турникета соблюдайте меры безопасности.
Запрещается!
• Перемещать через зону прохода предметы, размер которых превышает ширину проема прохода.
• Производить рывки и удары по составным частям турникета.
• Разбирать и регулировать узлы, обеспечивающие работу турникета.
• Использовать при чистке турникета вещества, способные вызвать механические повреждения поверхностей и коррозию деталей.
Включение турникета
Внимание! Перед включением турникета убедитесь, что зона прохода свободна и вращению створок ничего не препятствует. При включении турникета придерживайтесь следующей последовательности действий:
1. Подключите сетевой кабель источника питания турникета к розетке сети с напряжением и частотой, указанными в паспорте на этот источник питания.
2. Включите источник питания турникета. Створки турникета совершат поиск крайних положений и перейдут в исходное (закрытое) положение.
3. При импульсном режиме управления на турникет автоматически подается команда «Запрет прохода», при потенциальном – «Оба направления закрыты» до подачи любой следующей команды с внешнего контроллера. Турникет готов к работе.
Импульсный режим управления
Направления прохода независимы друг от друга, т.е. подача команды для одного направления не изменяет состояния противоположного направления прохода. При этом:
• После команды «Однократный проход в заданном направлении» турникет при помощи датчиков контролирует нахождение проходящего в зоне прохода. По завершению прохода турникет автоматически переходит в состояние, соответствующее команде «Запрет прохода».
• После команды «Однократный проход в заданном направлении», если проход не был осуществлен или если не была подана другая команда, то по истечении Времени удержания в разблокированном состоянии (по умолчанию 8 секунд) турникет автоматически перейдет в состояние, соответствующее команде «Запрет прохода».
• После подачи команды «Однократный проход в заданном направлении», если проход еще не состоялся, эта же команда для данного направления может быть подана повторно, при этом параметр Время удержания в разблокированном состоянии начинает отсчитываться заново.
• После подачи команды «Однократный проход в заданном направлении» не может быть подана команда «Свободный проход» для другого направления, турникет ее проигнорирует.
• После подачи команды «Свободный проход в заданном направлении» могут быть поданы только команда «Запрет прохода» или команда «Однократный проход в заданном направлении» для противоположного направления, другие команды турникет проигнорирует.
Потенциальный режим управления
Направления прохода независимы друг от друга, т.е. подача команды для одного направления не изменяет состояния противоположного направления прохода.

Действия в нештатных ситуациях
Режим «Авария»
В случае возникновения препятствия свободному повороту створок турникета предусмотрен автоматический переход турникета в режим «Авария». Режим необходим для предотвращения выхода из строя электропривода турникета вследствие перегрева.
При возникновении препятствия повороту створок в заданном направлении осуществляются три попытки поворота в том же направлении с интервалом в 3 секунды. Если после этого препятствие не будет устранено, то турникет перейдет в режим «Авария». В режиме «Авария» створки турникета могут свободно поворачиваться на угол ±90º, что позволяет беспрепятственно устранить возникшее препятствие в зоне прохода. При этом на пульт дистанционного управления мигают все три световых индикатора и подается непрерывный звуковой сигнал.
Выход из режима «Авария» происходит автоматически после устранения препятствия, освобождения зоны прохода турникета и возврата створок в исходное (закрытое) положение.
Также сигнал «Авария» автоматически генерируется в случае, если зона прохода турникета оказывается занятой кем-либо или чем-либо в течение более 30 секунд. Снятие сигнала происходит после освобождения зоны прохода.
Режим «Fire Alarm»
При возникновении опасных ситуаций на территории объекта зону прохода турникета можно использовать в качестве дополнительного аварийного выхода.
Предусмотрена возможность перевода турникета в режим Fire Alarm от устройства аварийного открытия прохода (прибора пожарной сигнализации, аварийной кнопки и т.д.). В этом режиме створки турникета открываются в одну из сторон и остаются открытыми для свободного прохода в обоих направлениях, при этом на блоках индикации одновременно для обоих направлений включаются зеленые индикаторы разрешения прохода в режиме мигания, команды управления от других устройств и ПО игнорируются (см. разд. 5.3.2).
Также при снятии (пропадании) напряжения питания створки турникета могут быть открыты вручную (не блокируются).
Внимание! Для экстренной эвакуации людей с территории предприятия в случае пожара, стихийных бедствий и других аварийных ситуаций используются соответствующие требованиям безопасности эвакуационные выходы. Таким выходом может служить, например, поворотная секция ограждения PERCo-BH02 «Антипаника».
Бренд турникета | PERCo |
Вид турникета | Турникет |
Тип турникета | C распашными створками |
Тип корпуса турникета | Однопроходной, Напольный |
Тип привода турникета | Электромеханический |
Исполнение турникета | Для помещений |
Материал корпуса турникета | Нержавеющая сталь |
Преграждающие планки/створки | Антипаника, в комплекте, Створки |
Антипаника | Автоматическая |
Тип блокировки | Нормально закрытый (НЗ) |
Встроенный картоприемник | Нет |
Встроенные считыватели | Без считывателей |
Пульт управления | 1 шт. в комплекте |
Верхняя крышка | Из стекла |
Напряжение питания | 24 В DC |
Источник питания | В комплект НЕ ВХОДИТ! (приобретается отдельно) |
Габариты | 1820х1300х1010 мм |
Ширина перекрываемого прохода | 1300 мм |
Ширина прохода | 900 мм |
Вес, кг | 170 |
Рабочая температура | от +1°C до +40°C |
Рабочая влажность | не выше 80% без конденсации |
Класс защиты (IP) | IP41 |
Цвет | Металл |
Наработка на отказ, не менее | 5 млн. циклов |
Средний срок службы | Не менее 8 лет |
Стыковка со СКУД | Любые типы СКУД |
Сертификаты | Транспортной безопасности |
Гарантия | 5 лет |
Страна производства | Россия |
Функция «Быстрый заказ» позволяет покупателю не проходить всю процедуру оформления заказа самостоятельно. Вы заполняете форму, и через короткое время вам перезвонит менеджер магазина. Он уточнит все условия заказа, ответит на вопросы, касающиеся качества товара, его особенностей. А также подскажет о вариантах оплаты и доставки.
По результатам звонка, пользователь либо, получив уточнения, самостоятельно оформляет заказ, укомплектовав его необходимыми позициями, либо соглашается на оформление в том виде, в котором есть сейчас. Получает подтверждение на почту или на мобильный телефон и ждёт доставки.
Оформление заказа в стандартном режиме
Если вы уверены в выборе, то можете самостоятельно оформить заказ, заполнив по этапам всю форму.
Заполнение адреса
Выберите из списка название вашего региона и населённого пункта. Если вы не нашли свой населённый пункт в списке, выберите значение «Другое местоположение» и впишите название своего населённого пункта в графу «Город». Введите правильный индекс.
Доставка
В зависимости от места жительства вам предложат варианты доставки. Выберите любой удобный способ. Подробнее об условиях доставки читайте в разделе «Доставка».
Оплата
Выберите оптимальный способ оплаты. Подробнее о всех вариантах читайте в разделе «Оплата»
Покупатель
Введите данные о себе: ФИО, адрес доставки, номер телефона. В поле «Комментарии к заказу» введите сведения, которые могут пригодиться курьеру, например: подъезды в доме считаются справа налево.
Оформление заказа
Проверьте правильность ввода информации: позиции заказа, выбор местоположения, данные о покупателе. Нажмите кнопку «Оформить заказ».
Наш сервис запоминает данные о пользователе, информацию о заказе и в следующий раз предложит вам повторить к вводу данные предыдущего заказа. Если условия вам не подходят, выбирайте другие варианты.
Если Вы хотите узнать об условиях доставки и оплаты, но не желаете о них читать, то Вы можете позвонить любому нашему сотруднику, и он обязательно Вам поможет.
Покупка за безналичный расчет
При оплате за безналичный расчет наш сотрудник свяжется с Вами, чтобы подтвердить заказ и уточнить сроки и адрес доставки. После оформления заказа сотрудник нашей компании вышлет вам счет, по которому необходимо будет произвести оплату.
После оплаты заказа к Вам приедет наш курьер, который доставит ваш заказ.
Самостоятельно забрать заказ из пунктов самовывоза Вы можете после его оплаты по безналичному расчету. Оплата доставки до пунктов выдачи транспортных компаний производится по тарифам выбранной Вами транспортной компании непосредственно в месте получения заказа.
Самовывоз из офиса нашей компании в Зеленограде, так же возможен после предоплаты по безналичному расчету, и предварительной договоренности с менеджером.
Интернет-магазин выполняет доставку любого товара своей собственной Службой доставки.
Стоимость доставки курьером
Стоимость доставки по Москве, Все товары —750 руб., бесплатная доставка от 25000 руб
Стоимость доставки по Московской области рассчитывается для каждого заказа индивидуально и зависит от суммарного веса товаров заказа и удаленности адреса доставки.
Время доставки
Время доставки согласовывается с менеджером Службы доставки, который обязательно свяжется с вами сразу после того, как вы разместите свой заказ.
Для осуществления доставки в регионы России мы пользуемся услугами компаний СДЭК, ЖелДорЭкспедиция, Автотрейдинг, Деловые Линии. В таком случае, указанными кампаниями взимается стоимость доставки по их внутренним тарифам с заказчика при получении товара.
Самовывоз
Забрать товар самостоятельно и абсолютно бесплатно можно только по адресу: Москва, Зеленоград, Панфиловский проспект, дом 10.
Забрать товар самовывозом можно по любому из адресов самовывоза указанных здесь, стоимость доставки до пункта самовывоза рассчитывается для каждого заказа по тарифам транспортных компаний.











































