Турникет тумбовый моторизованный TWISTER 700 двухпроходной с автоматической системой антипаники.
Особенности
• Корпус и преграды из нержавеющей стали AISI 304.
• Оснащен платой управления и светодиодными указателями прохода.
• Стержни-барьеры с электродоводкой, автоматической системой антипаники и автоматическим поднятием штанг.
• Встроенный блок питания.
Функционал
• Совместимость со СКУД работающих по "сухому контакту".
• Управление проходами в двух направлениях.
• Аварийный режим - режим свободного прохода.
• Система антипаники.
• Автоматическое поднятие штанг.
• Возможность выбора режима свободного прохода и ограничения доступа на встречных направлениях.
• Светодиодные указатели направления движения.
Характеристики:
• Тип механизма турникета: моторизованный
• Наличие системы "Антипаника": Да
• Индикация: Встроенные в лицевые панели светодиодные индикаторы состояния (Dot Matrix) с изображением зеленой стрелки и красного креста.
Опционально - дополнительная световая индикация.
• Интенсивность использования (%): ИНТЕНСИВНОЕ
• Макс. количество проходов в минуту: 48
• Система контроля: Блок управления совместим с большинством систем контроля доступа, работающих по сухому контакту или выходам заземления. Защита входов (гальваническая развязка). Опционально: интеграция контрольного модуля S232 / RS485 / TCP IP.
• Режим работы: Управление проходами в двух направлениях. Автоматический режим c возможностью выбора ограничения доступа и свободного прохода.
• Выходные данные: Система обеспечивает обратную связь по сухим контактам или (опционально) посредством модуля RS232 / RS485 / TCP IP.
• Напряжение электропитания (В): 230
• Напряжение электропитания двигателя (В): 24
• Потребление в режиме ожидания 8.8 Вт, во время работы макс. 24 Вт
• Материал корпуса: Нержавеющая сталь ANSI 304 с матовой обработкой. Радиопрозрачные вставки для установки считывающих устройств в крышке.
• Диапазон рабочих температур: -20 C до 68 C
• Влажность: 95% без конденсации
• Класс защиты: IP 54
Бренд турникета | Came |
Вид турникета | Турникет |
Тип турникета | Трипод |
Тип корпуса турникета | Двухпроходной, Тумбовый, Напольный |
Тип привода турникета | Электромоторный |
Исполнение турникета | Для помещений |
Материал корпуса турникета | Нержавеющая сталь |
Преграждающие планки/створки | Антипаника, в комплекте |
Антипаника | Автоматическая |
Тип блокировки | Нормально закрытый (НЗ) |
Встроенный картоприемник | Нет |
Встроенные считыватели | Без считывателей |
Пропускная способность | 45 чел/мин |
Пульт управления | Приобретается отдельно |
Напряжение питания | 230 В |
Источник питания | Встроенный |
Потребляемая мощность, макс. | 24 Вт |
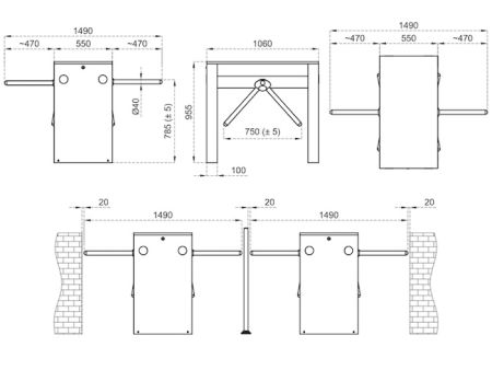
Габариты | 1060х550х955 мм |
Ширина перекрываемого прохода | 1530 мм |
Ширина прохода | 470 мм |
Рабочая температура | от -20°C до +65°C |
Класс защиты (IP) | IP54 |
Наработка на отказ, не менее | 15 млн. циклов |
Стыковка со СКУД | Любые типы СКУД |
Гарантия | 3 года |
Страна производства | Италия |
Функция «Быстрый заказ» позволяет покупателю не проходить всю процедуру оформления заказа самостоятельно. Вы заполняете форму, и через короткое время вам перезвонит менеджер магазина. Он уточнит все условия заказа, ответит на вопросы, касающиеся качества товара, его особенностей. А также подскажет о вариантах оплаты и доставки.
По результатам звонка, пользователь либо, получив уточнения, самостоятельно оформляет заказ, укомплектовав его необходимыми позициями, либо соглашается на оформление в том виде, в котором есть сейчас. Получает подтверждение на почту или на мобильный телефон и ждёт доставки.
Оформление заказа в стандартном режиме
Если вы уверены в выборе, то можете самостоятельно оформить заказ, заполнив по этапам всю форму.
Заполнение адреса
Выберите из списка название вашего региона и населённого пункта. Если вы не нашли свой населённый пункт в списке, выберите значение «Другое местоположение» и впишите название своего населённого пункта в графу «Город». Введите правильный индекс.
Доставка
В зависимости от места жительства вам предложат варианты доставки. Выберите любой удобный способ. Подробнее об условиях доставки читайте в разделе «Доставка».
Оплата
Выберите оптимальный способ оплаты. Подробнее о всех вариантах читайте в разделе «Оплата»
Покупатель
Введите данные о себе: ФИО, адрес доставки, номер телефона. В поле «Комментарии к заказу» введите сведения, которые могут пригодиться курьеру, например: подъезды в доме считаются справа налево.
Оформление заказа
Проверьте правильность ввода информации: позиции заказа, выбор местоположения, данные о покупателе. Нажмите кнопку «Оформить заказ».
Наш сервис запоминает данные о пользователе, информацию о заказе и в следующий раз предложит вам повторить к вводу данные предыдущего заказа. Если условия вам не подходят, выбирайте другие варианты.
Если Вы хотите узнать об условиях доставки и оплаты, но не желаете о них читать, то Вы можете позвонить любому нашему сотруднику, и он обязательно Вам поможет.
Покупка за безналичный расчет
При оплате за безналичный расчет наш сотрудник свяжется с Вами, чтобы подтвердить заказ и уточнить сроки и адрес доставки. После оформления заказа сотрудник нашей компании вышлет вам счет, по которому необходимо будет произвести оплату.
После оплаты заказа к Вам приедет наш курьер, который доставит ваш заказ.
Самостоятельно забрать заказ из пунктов самовывоза Вы можете после его оплаты по безналичному расчету. Оплата доставки до пунктов выдачи транспортных компаний производится по тарифам выбранной Вами транспортной компании непосредственно в месте получения заказа.
Самовывоз из офиса нашей компании в Зеленограде, так же возможен после предоплаты по безналичному расчету, и предварительной договоренности с менеджером.
Интернет-магазин выполняет доставку любого товара своей собственной Службой доставки.
Стоимость доставки курьером
Стоимость доставки по Москве, Все товары —750 руб., бесплатная доставка от 25000 руб
Стоимость доставки по Московской области рассчитывается для каждого заказа индивидуально и зависит от суммарного веса товаров заказа и удаленности адреса доставки.
Время доставки
Время доставки согласовывается с менеджером Службы доставки, который обязательно свяжется с вами сразу после того, как вы разместите свой заказ.
Для осуществления доставки в регионы России мы пользуемся услугами компаний СДЭК, ЖелДорЭкспедиция, Автотрейдинг, Деловые Линии. В таком случае, указанными кампаниями взимается стоимость доставки по их внутренним тарифам с заказчика при получении товара.
Самовывоз
Забрать товар самостоятельно и абсолютно бесплатно можно только по адресу: Москва, Зеленоград, Панфиловский проспект, дом 10.
Забрать товар самовывозом можно по любому из адресов самовывоза указанных здесь, стоимость доставки до пункта самовывоза рассчитывается для каждого заказа по тарифам транспортных компаний.





