• Тумбовый турникет BAR BA: 1 шт.. Трёхштанговый турникет с блоком питания SM-12
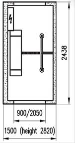
• Габариты контейнера (длина/ширина/высота): 1500х2438х2820 мм
• Наружная отделка: многослойный стальной лист, окраска RAL, крыша с дренажным слоем, пароизоляция
• Отсек с турникетами: стены = многослойный стальной лист/ пол = 3мм рифлёный лист алюминия
• Внешнее отверстие для коммуникаций
• Внутреннее освещение(влагозащищённые флуоресцентные лампы)
• Входная дверь без рольставней
• Оснащён четырьмя проушинами для транспортировки
• Шлифованная нержавеющая сталь, подготовлена для уличной установки
Стандартная версия не включает рольставни
Мобильная система контроля доступа Cominfo Portacc
Cominfo Portacc - это комплексное решение для обеспечения безопасности и портативная система контроля доступа.
Эта специально сконструированная конструкция объединяет в себе преимущества мобильности (портативный блок контейнер), безопасности (может быть установлен как полуростовой, так и полноростовой турникет), а также электронного контроля доступа (RFID считыватель / считыватель бар кодов).
• Комната охраны объединяет в себе системы контроля доступа и систему видеонаблюдения.• Система управления доступом для автомобилей контролирует проезд транспортных средств.
• Турникет, предназначенный для зон с большой проходимостью, обеспечивает только санкционированные проходы. Ни один проход без соответствующей карты или бар кода невозможен.
Все эти задачи могут быть воплощены в одном месте с помощью PORTACC.
Решение для экстремальных ситуаций
Антивандальные конструкции вместе с антикоррозийной обработкой позволяет использовать PORTACC в экстремальных и загруженных условиях строительной индустрии, нефтяной и горнодобывающей промышленности, либо на концертах и фестивалях.
Функция накопления резервного электропитания позволяет сохранить функциональность системы в случае отключения электропитания или других непредвиденных событий.
Вариативный модуль
PORTACC - конструкция, которая может предложить индивидуальное решение для любых проектов, требований и настройки. Эта мобильная система позволяет удовлетворить все требования по проекту и предлагает широкий спектр моделей PORTACC (можно установить один турникет в модуль, сделать длину 20 футов, 40 футов и многое другое). Все контейнеры могут быть дополнены комнатой охраны или шлагбаумом для автомобилей.
Конструкция модуля
В системе PORTACC применяется приятный глазу интерьер из стали, но при этом сохраняет все функции в неблагоприятных погодных условиях. Все кабели скрыты за стеной и не доступны для вандалов.
Возможные места применения:
• Строительные объекты
• Электростанции
• Нефтеперерабатывающие заводы
• Порты, доки
• Большие мероприятия на открытом воздухе
• Военные объекты
• Системы массового прохода людей
Конструкция
Блок контейнер
Блок контейнер представляет собой отдельно стоящую конструкцию из профлиста, которая может быть окрашена в цвета
RAL по таблице. Контейнер имеет термо и пароизоляцию.
Для транспортировки с помощью крана контейнер оборудован 8-ю петлями.
Погрузочные отверстия для легкой перевозки с помощью вилочного погрузчика или внешние транспортировочные панели могут
быть добавлены опционально.
Интерьер
Внутренние стены турникетного зала изготавливаются из стальных панелей белого цвета с водонепроницаемой обработкой
для легкой очистки и приятного внешнего вида. Противоскользящий материал для напольного покрытия был выбран в качестве
стандартной опции. Внутренние секции освещаются с помощью люминесцентных ламп.
Тип прохода
Стандартная входная дверь не оснащена роликами. Пол выполнен из нескользящего рифленого алюминия. Опционально могут быть
добавлены механические/электрические рольставни для ворот или двери.
Комната охраны
Термо и пароизолированное охранное помещение с окном обеспечивает полный контроль над проходами через турникеты.
Отдельная дверь для входа охранников повышает уровень безопасности модуля PORTACC.
Комната охраны может быть дополнительно укомплектована офисной мебелью, кондиционером с модулем отопления, ПК, системой
видеонаблюдения, наружными рольставнями и многим другим.
Тип турникета
Чтобы соответствовать различным требованиям по безопасности, в PORTACC может быть установлено два типа турникета.
Антивандальная конструкция из нержавеющей стали для турникетов–естественная защита в виде стен контейнера.
Полуростовой турникет-трипод BAR BA с низким уровнем безопасности предназначен для установки при входе на фестивали и
концерты.
Полноростовой турникет REXON ERA 3 / ERA 3 DUO с жесткой рамой является оптимальным решением для установки в условиях
повышенной безопасности (стройка) или промышленного предприятия.
Также доступен большой выбор дополнительных опций для этих турникетов (пульт управления, подсветка, резервное электропитание
и т.д.)
Система доступа для машин
Шлагбаум для проезда машин может быть дополнительно установлен в модуль PORTACC. Это устройство обеспечивает контроль
доступа для автомобилей и людей.
Съемный шлагбаум позволяет легко транспортировать PORTACC со встроенной системой доступа для машин. Возможна установка
дополнительного оборудования, такого как «юбка» балки шлагбаума или подсветка, функция резервного электропитания и многое
другое.
Увеличение длины модуля PORTACC с установленным шлагбаумом составляет 500 мм.
Возможности изменения модуля
Система PORTACC представляет собой симбиоз красивого дизайна и прочности конструкции контейнера. Размеры контейнера можно менять в соответствии с пожеланиями заказчика или добавить в конструкцию комнату охраны и шлагбаум. Также заказчик может выбрать тип устанавливаемого турникета: BAR BA, REXON ERA 3, REXON ERA 3 DUO.
Помимо этого, можно разработать индивидуальные решения для модуля PORTACC.
В целом, возможности вариативности модуля очень широки.
Блок модуль контейнер (внешнее оформление)
• Материал исполнения: стальной каркас, стальные листы (оцинкованные), окраска в цвета RAL, зацементированный пол.
• Транспортировка 8 такелажных петель для перевозки с помощью крана (контейнер длиной 40 фт. оснащен дополнительными уголками)
• Прочее: водосток, изоляция и пароизоляция
Блок модуль контейнер (внутреннее наполнение) (включая комнату охраны)
• Материал: исполнения внутренние стены контейнера отделаны белыми стальными листами и обработаны от проникновения воды.
• Материал пола: ребристый алюминиевый лист толщиной 3 мм, противоскользящий.
• Прочее: вентиляция с сеткой от насекомых, освещение всех внутренних секций (включая комнату охранника)
Тип прохода
• Материал: исполнения пол из ребристого алюминиевого листа толщиной 3 мм, противоскользящий.
• Прочее: стандартная входная дверь без рольставней.

Модель с одним турникетом:
Турникет REXON
Турникет REXON и комната охраны
Турникет BAR
Турникет BAR и комната охраны

Модель длиной 20 фт.:
4 турникета REXON
3 турникета REXON и комната охраны
6 турникетов BAR
4 турникета BAR и комната охраны

Модель длиной 40 фт.:
4 турникета REXON ERA DUO
6 турникетов REXON и комната охраны
12 турникетов BAR
8 турникетов BAR и комната охраны
Система PORTACC использует адаптированные модули для каждого проекта с возможностью поставки модуля длиной от 2 до 12 метров. Увеличение длины контейнера составляет 500 мм в случае установки шлагбаума для проезда машин. Для модулей длиной 20/40 фт. – длина модуля вариативна.
Дополнительные опции для контейнера
• Верхняя отделка: цвета RAL (возможна окраска в различные цвета стен контейнера, двери и т.д.) Специальная антикоррозийная обработка (для суровых условий морского порта и т.д.)
Дополнительные опции для прохода
• Роликовые ворота:
- Механические рольставни (оснащены замком)
- Электрические рольставни (оснащены замком)
- Механизм разблокировки для электрических рольставней
- Место для хранения инструментов для разблокировки электрических рольставней
• Особенности прохода:
- Противоскользящее покрытие (Grabiol)
- Откидная платформа на входе
- Указатели ВХОД/ВЫХОД на крыше
Другие дополнительные опции
• Внешняя подсветка
• Вилочные карманы (для транспортировки с помощью вилочного погрузчика) только для контейнера длиной до 6,5 м
Комната охраны
Неотъемлемая часть модуля PORTACC – это комната охраны. Она может быть установлена в середине или справа/ слева в модуле.
Это термо- и пароизолированная комната для охранников.
Контроль за проходной зоной обеспечивает окно с рольставнем, а стальная дверь повышает уровень безопасности модуля PORTACC.
Комната охраны также может быть дополнительно оснащена офисным стулом и столом, кондиционером с модулем отопления или ПК с интерфейсом локальной сети и видеонаблюдением. Окна могут быть оснащены рольставнями.
Для дистанционного управления турникетами модуль может быть оборудован сенсорной панелью управления или программным обеспечением TMON. В настройках пульта управления турникетами заложены команды для одиночного/постоянного/свободного прохода или аварийного режима.
• Изоляция: термо и пароизолированная диспетчерская Оборудована модулем отопления
• Прочее: розетки + интерфейс для локальной сети Отдельная дверь для входа охраны (окрашена в основной цвет контейнера)
Дополнительное оборудование для комнаты охраны
• Офисное оборудование: Офисное кресло + стол
• Температурные условия: Кондиционер с модулем отопления
• Окна:
- Наружное окно (не открывается, оборудовано жалюзи)
- Наружное окно (открывается наполовину, с жалюзи)
- Наружное окно (открывается полностью, с жалюзи)
- Рольставни для внутреннего окна
Система доступа для автомобилей
Увеличение длины модуля может составлять 500 мм в случае установки шлагбаума для проезда автомобилей. Платформа для установки шлагбаума монтируется на основание контейнера. Данная платформа несъемная и перевозится вместе с контейнером.
Система доступа для автомобилей оснащена съемным шлагбаумом длиной до 6 метров.
Рекомендуется дополнять комнату охраны системой доступа для автомобилей. В этом случае комнату нужно расположить по бокам контейнера (а не в середине).
Благодаря длине шлагбаума до 6 метров можно контролировать проезд грузовиков в двух направлениях.
Проезд можно контролировать нажатием кнопки из комнаты охраны либо с пульта дистанционного управления.
Опционно: подсветка шлагбаума, «юбка» балки шлагбаума, резервный аккумулятор для бесперебойного питания, специальная балка для доступа небольшого транспорта.

Система доступа автомобилей (увеличение длины контейнера со шлагбаумом составляет 500 мм)
• Платформа: Платформа - часть контейнера
• Шлагбаум: Съемный шлагбаум длиной до 6 метров
Дополнительное оборудование для системы доступа автомобилей
• Шлагбаум:
- Подсветка шлагбаума, увеличение высоты «юбки» балки шлагбаума
- Специальные небольшие ворота в конструкции контейнера для легкой транспортировки шлагбаума
• Прочее:
- Резервный аккумулятор
- Модуль отопления с термостатом
- Кнопка управления или пульт дистанционного управления
Тип турникета
Турникет (для большого трафика)
Модель: BAR BA
• Тип турникета: полуростовой турникет с типом мотора fail-lock
• Материал: нержавеющая сталь
• Другое: уличный пакет (система отопления с термометром для двигателя)
Модель: REXON ERA3 / ERA 3 DUO
• Тип турникета: полноростовая версия с тремя секциями (одиночный/сдвоенный проход) с fail-lock мотором, дополнительно оснащена электромагнитными тормозами
• Материал: исполнения оцинкованная сталь с окраской в цвета RAL
• Прочее: уличный пакет (система отопления с термометром для двигателя)


* предлагается в качестве опции
Дополнительное оборудование для турникетов
• Только для турникета BAR BA: датчик подползания/перепрыгивания через турникет, аварийное опускание штанги
• Пульт дистанционного управления: Touch panel
• Приложение для удаленного управления: турникетами TMON
• Прочее:
- Мотор с приводом Fail-safe
- Световая индикация
- Резервный аккумулятор
Бренд турникета | Cominfo |
Вид турникета | Турникет |
Тип турникета | Турникет на мобильной платформе |
Тип корпуса турникета | Однопроходной, Тумбовый, Напольный |
Тип привода турникета | Электромоторный |
Исполнение турникета | Уличное (без навеса) |
Тип блокировки | Нормально закрытый (НЗ), Нормально открытый (НО) |
Пульт управления | Приобретается отдельно |
Напряжение питания | 24 В / 100...230 В |
Гарантия | 2 года |
Страна производства | Чехия |
Функция «Быстрый заказ» позволяет покупателю не проходить всю процедуру оформления заказа самостоятельно. Вы заполняете форму, и через короткое время вам перезвонит менеджер магазина. Он уточнит все условия заказа, ответит на вопросы, касающиеся качества товара, его особенностей. А также подскажет о вариантах оплаты и доставки.
По результатам звонка, пользователь либо, получив уточнения, самостоятельно оформляет заказ, укомплектовав его необходимыми позициями, либо соглашается на оформление в том виде, в котором есть сейчас. Получает подтверждение на почту или на мобильный телефон и ждёт доставки.
Оформление заказа в стандартном режиме
Если вы уверены в выборе, то можете самостоятельно оформить заказ, заполнив по этапам всю форму.
Заполнение адреса
Выберите из списка название вашего региона и населённого пункта. Если вы не нашли свой населённый пункт в списке, выберите значение «Другое местоположение» и впишите название своего населённого пункта в графу «Город». Введите правильный индекс.
Доставка
В зависимости от места жительства вам предложат варианты доставки. Выберите любой удобный способ. Подробнее об условиях доставки читайте в разделе «Доставка».
Оплата
Выберите оптимальный способ оплаты. Подробнее о всех вариантах читайте в разделе «Оплата»
Покупатель
Введите данные о себе: ФИО, адрес доставки, номер телефона. В поле «Комментарии к заказу» введите сведения, которые могут пригодиться курьеру, например: подъезды в доме считаются справа налево.
Оформление заказа
Проверьте правильность ввода информации: позиции заказа, выбор местоположения, данные о покупателе. Нажмите кнопку «Оформить заказ».
Наш сервис запоминает данные о пользователе, информацию о заказе и в следующий раз предложит вам повторить к вводу данные предыдущего заказа. Если условия вам не подходят, выбирайте другие варианты.
Если Вы хотите узнать об условиях доставки и оплаты, но не желаете о них читать, то Вы можете позвонить любому нашему сотруднику, и он обязательно Вам поможет.
Покупка за безналичный расчет
При оплате за безналичный расчет наш сотрудник свяжется с Вами, чтобы подтвердить заказ и уточнить сроки и адрес доставки. После оформления заказа сотрудник нашей компании вышлет вам счет, по которому необходимо будет произвести оплату.
После оплаты заказа к Вам приедет наш курьер, который доставит ваш заказ.
Самостоятельно забрать заказ из пунктов самовывоза Вы можете после его оплаты по безналичному расчету. Оплата доставки до пунктов выдачи транспортных компаний производится по тарифам выбранной Вами транспортной компании непосредственно в месте получения заказа.
Самовывоз из офиса нашей компании в Зеленограде, так же возможен после предоплаты по безналичному расчету, и предварительной договоренности с менеджером.
Интернет-магазин выполняет доставку любого товара своей собственной Службой доставки.
Стоимость доставки курьером
Стоимость доставки по Москве, Все товары —750 руб., бесплатная доставка от 25000 руб
Стоимость доставки по Московской области рассчитывается для каждого заказа индивидуально и зависит от суммарного веса товаров заказа и удаленности адреса доставки.
Время доставки
Время доставки согласовывается с менеджером Службы доставки, который обязательно свяжется с вами сразу после того, как вы разместите свой заказ.
Для осуществления доставки в регионы России мы пользуемся услугами компаний СДЭК, ЖелДорЭкспедиция, Автотрейдинг, Деловые Линии. В таком случае, указанными кампаниями взимается стоимость доставки по их внутренним тарифам с заказчика при получении товара.
Самовывоз
Забрать товар самостоятельно и абсолютно бесплатно можно только по адресу: Москва, Зеленоград, Панфиловский проспект, дом 10.
Забрать товар самовывозом можно по любому из адресов самовывоза указанных здесь, стоимость доставки до пункта самовывоза рассчитывается для каждого заказа по тарифам транспортных компаний.


