Компания Magnetic произвела революцию в мире турникетов и переосмыслила подход к их проектированию. Благодаря уникальному дизайну, плавным линиям и разнообразию цветов турникеты FlowMotion® легко вписываются в любую и даже самую сложную архитектуру. Теплый и приятный на ощупь материал mDure подчеркивает гостепреимность.Материал mDure очень прочен, при ударе не получает вмятин, невероятно устойчив к царапинам, что позволяет сохранять идеальный внешний вид долгое время.
• Революционный дизайн, победитель German Design Award 2018
• Контроллер MGC
• Моторизированные планки в стандартной комплектации
• Автоматические планки "антипаника" при сигнале "пожар" (опционально)
• 100% интенсивность работы
• Ethernet модуль для настройки и удаленного контроля (опционально)
• Материал тумбы - mDure (2-х компонентный ударостойкий полимер, не оставляющий вмятин и пятен)
• Возможна установка подсветки пола, дополнительной блокировки, детектора несканкционированнного проникновения под и над планками
• Разработан с учетом ресурса от 10 000 000 циклов
• Использование внутри помещений и на улице, P54, -30 до +55 °C
Вся продукция FlowMotion® имеет унифицированный дизайн. Тонкая форма корпуса позволяет легко разместиться в проходах, а привлекательный дизайн радовать глаз пользователя. В 2018 году модель mTripod была удостоена награды German Design Award от взыскательного жюри.
Гибкая интеграция решений FlowMotion® в любые интерьеры за счет выбора индивидуального цвета. Magnetic сосредоточен не только на красоте форм, но на их цветовом воплощении. Magnetic предлагает широкую гамму расцветок и высокоэффективных покрытий. Входные группы FlowMotion® идут в ногу со временем и тенденциями промышленного дизайна.
Функциональные особенности
• Направление прохода: В одно и в оба направления
• Аварийная разблокировка: При отключении питания или замыкании аварийного контакта
• Генератор случайного досмотра: Интегрирован в плату управления
• Сбор данных и журнал событий: Интегрирован в плату управления
• Входы-выходы: 8 цифровых входов, 4 цифровых выхода и 6 выходов реле
Турникеты и ограждения FlowMotion® обеспечивают безопасность предприятий, государственные учреждений и учреждения культуры от несанкционированного доступа. Благодаря единой линейки FlowMotion® все продукты можно легко комбинировать. Многочисленные опции и
аксессуары делают FlowMotion® идеальной входной группой.
FlowMotion® основана на надежной технологии MHTM™, которая также используется в шлагбаумах Magnetic: блок управления MGC обеспечивает прямой доступ ко всем функциям, параметрам и информации. MHTM ™ не требует обслуживания, энергоэффективен, бесшумен и рассчитан на 10 миллионов циклов.
FlowMotion® использует современные интерфейсы взаимодействия человека с высокотехнологичными технологиями, что позволяет построить комфортную среду зданий. Входные группы с использованием FlowMotion® - наиболее удобное для пользователя решение, которое интуитивно понятно и делает проход наиболее простым и беспроблемным.
Двухкомпонентный материал mDure создается путем химической реакции непосредственно в пресс-форме, что обеспечивает исключительную свободу дизайна. Материал не только особенно устойчив к ударам, царапинам и истиранию, но также является огнестойким и не содержит растворителей, пластификаторов и токсичных веществ. Это делает его подходящим как для открытых площадок, так и для внутренних помещений.
Характеристики:
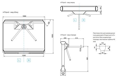
• Вариант тумбы: Long (длинная)
• Исполнение: Уличное и внутреннее
• Ширина прохода: 515 мм
• Пропускная способность: ~ 20 человек в
• Привод: MHTM™
• Плата управления: MGC
• Напряжение питания: 100–240 В ~ 50/60 Гц
• Потребление: 30 Вт
• Интенсивность: 100%
• Материал тумбы: mDure
• Степень защиты: IP 54
• Температурный диапазон: −30 ... +55 °C
• Размеры (Дx Ш x В): 1300 x 290 x 1050 мм (без планок)
• Масса: ~ 70 кг
• Цвет: Базальт (близкий к RAL 9006), Антрацит (близкий к RAL 9005)
В стандартную комплектацию турникета mTripod не входит крепеж к полу
Аксессуары для Magnetic mTripod
Планки
• CS100 Замена стандартных планок на облегченные планки из карбона (комплект 3 шт.)
Планки "антипаника"
• DA100 Опция "антипаника" для турникета mTripod всех версий
• VERH100 Дополнительный замок закрытого положения планок, допускает движения планок +/− 5 град.
• VE100 Блок питания VE100 (требуется 1 шт. при установке всех опций для mTripod)
Передние панели
• FP104 Лицевая панель с изображением считывателя (1шт.)
• HUL100 Держатель встраиваемого считывателя (минимальный заказ 2 шт.)
• HUL101 Держатель встраиваемого считывателия FAAC Keydom (минимальный заказ 2 шт.)
• DT100 Кнопка выхода с подсветкой EP113 Услуга установки аксессуара (за 1 единицу)
Жетоноприемник
• AUG200 Кожух жетоноприемника для встраивания монетоприемников сторонних производителей
• AUG201 Жетоноприемник с механическим механизмом
• CMZ012750 Жетон диаметром 27 мм c канавкой (комплект 50 шт.)
• AUG202 Жетоноприемник с механическим механизмом и электронным блоком
Дополнительно
- Предназначены для самостоятельной установки:
• LHAF100 Опорный кольцо для установки внутрь тумбы турникета
• LHAR100 Регулируемый кронштейн крепления для считывающего устройства, 115–135 мм
- Для сборки на заводе:
• LHAR100 Регулируемый кронштейн крепления для считывающего устройства, 115–135 мм
• EP113 Услуга установки аксессуара (за 1 единицу)
Лицевая панель кронштейна
• LHAP100 Лицевая панель кронштейна для установки считывающего устройства
Подсветка
- Не требует установки блока питания VE100:
• GED100 Встраиваемая подсветка указателя прохода на торцевой части тумбы (комплект из 2 шт. с обоих сторон)
• DLED100 Генератор случайного досмотра и функция расширения опции GED100 из одноцветной в 2-х цветную индикации
• EP110 Услуга установки подсветки (за 1 единицу)
- Требует блока питания VE100, 1 шт. на все опции:
• RLED100 Красно-зеленая подсветка контура тумбы (для FMTP_ML)
• RLED101 Красно-зеленая подсветка контура тумбы (для FMTP_MS)
• BOLED100 Белая подсветка пола (для FMTP_ML)
• BOLED101 Белая подсветка пола (для FMTP_MS)
• VE100 Блок питания VE100 (требуется 1 шт. при установке всех опций для mTripod)
• EP110 Услуга установки подсветки (за 1 единицу)
Сенсоры / оповещателя, не требуют БП VE100
• UKE100 Система обнаружения проникновения человека под планками
• USE100 Система обнаружения проникновения человека над планками
• EP111 Услуга установки системы обнаружения (за 1 единицу)
• ESU100 Встраиваемая звуковая сирена при обнаружении проникновения
• EP113 Услуга установки аксессуара (за 1 единицу)
Интерфейсы
• EM01 Ethernet интерфейс для настройки и контроля
Кнопка экстренной разблокировки/сервисный модуль
• NT100 Emergency push button, without cables 230 V AC/24 V DC
• SM01 Service module for updating the controller software and parameters
Пульты управления
• PULT01 Пульт управления 1 устройством
• PULT02 Пульт управления 2 устройствами
Опции крепежа турникета
В стандартную комплектацию турникета mTripod не входит крепеж к полу. В комплекте имеется картонный (толщина 5 мм) шаблон для сверления отверстий в полу для крепления турникета. Закрепить турникет можно с помощью анкеров, шпилек или других метизов сторонних производителей, которые приобретаются отдельно.
Приобретение оригинальных опций крепежа ускоряет монтаж, а также позволяет решить нестандартные задачи крепежа.
• ARS100 Металлический шаблон FlowMotion® (mTripod ML/MS, mWing) для сверления отверстий в полу (используется для сложных условий монтажа вместо картонного, который поставляется в комплекте с турникетом)
Опция №1: Установка на финишное покрытие пола
• BSS100 Комплект крепления с химическими анкерами на пол с финишным покрытием
Опция №2a Установка на стадии подготовки полового покрытия
• FURA100 Монтажная пластина FlowMotion®(mTripod ML, mWing)
• BSSFURA100 Металлическая опорная пластина для установки на черновое покрытие перед стяжкой для FMTP_ML
Опция №2b Установка на стадии подготовки полового покрытия
• FURA101 Монтажная пластина FlowMotion® (mTripod MS)
• BSSFURA101 Металлическая опорная пластина для установки на черновое покрытие перед стяжкой для FMTP_MS
Опция №3 Установка на финишное покрытие с помощью специального высокоадгезионного клея
• FURA100 Монтажная пластина FlowMotion® (mTripod ML, mWing)
• FURA101 Монтажная пластина FlowMotion® (mTripod MS)
• BSSKL100 Высокоадгезионный клей FlowMotion® для приклеивания
• FURA100/101 к финишной поверхности пола
Опция №4 Установка для брусчатки
• FURA102 Пластина для установки на брусчатку высотой H=150мм для FMTP_ML
• FURA104 Пластина для установки на брусчатку высотой H=150мм для FMTP_MS
• BSS100 Комплект установки монтажного основания на пол с финишным покрытием
Опция №5 Подиум
• FMMS_TP Подиум из нержавеющей стали с пространством для прокладки кабеля (на 1 точку прохода)
Бренд турникета | Magnetic |
Вид турникета | Турникет |
Тип турникета | Трипод |
Тип корпуса турникета | Однопроходной, Тумбовый, Напольный |
Тип привода турникета | Электромоторный |
Исполнение турникета | Уличное (под навесом) |
Материал корпуса турникета | Окрашенный алюминий |
Преграждающие планки/створки | Стандартные, в комплекте |
Встроенный картоприемник | Нет |
Встроенные считыватели | Без считывателей |
Пропускная способность | 20 чел/мин |
Пульт управления | Приобретается отдельно |
Напряжение питания | 100...240 В |
Источник питания | В комплект НЕ ВХОДИТ! (приобретается отдельно) |
Потребляемая мощность, макс. | 30 Вт |
Габариты | 805х1300х1050 мм |
Ширина перекрываемого прохода | 805 мм |
Ширина прохода | 515 мм |
Вес, кг | 70 |
Рабочая температура | от -30°C до +55°C |
Класс защиты (IP) | IP54 |
Цвет | Серый, черный |
Наработка на отказ, не менее | 10 млн. циклов |
Стыковка со СКУД | Любые типы СКУД |
Страна производства | Германия |
Функция «Быстрый заказ» позволяет покупателю не проходить всю процедуру оформления заказа самостоятельно. Вы заполняете форму, и через короткое время вам перезвонит менеджер магазина. Он уточнит все условия заказа, ответит на вопросы, касающиеся качества товара, его особенностей. А также подскажет о вариантах оплаты и доставки.
По результатам звонка, пользователь либо, получив уточнения, самостоятельно оформляет заказ, укомплектовав его необходимыми позициями, либо соглашается на оформление в том виде, в котором есть сейчас. Получает подтверждение на почту или на мобильный телефон и ждёт доставки.
Оформление заказа в стандартном режиме
Если вы уверены в выборе, то можете самостоятельно оформить заказ, заполнив по этапам всю форму.
Заполнение адреса
Выберите из списка название вашего региона и населённого пункта. Если вы не нашли свой населённый пункт в списке, выберите значение «Другое местоположение» и впишите название своего населённого пункта в графу «Город». Введите правильный индекс.
Доставка
В зависимости от места жительства вам предложат варианты доставки. Выберите любой удобный способ. Подробнее об условиях доставки читайте в разделе «Доставка».
Оплата
Выберите оптимальный способ оплаты. Подробнее о всех вариантах читайте в разделе «Оплата»
Покупатель
Введите данные о себе: ФИО, адрес доставки, номер телефона. В поле «Комментарии к заказу» введите сведения, которые могут пригодиться курьеру, например: подъезды в доме считаются справа налево.
Оформление заказа
Проверьте правильность ввода информации: позиции заказа, выбор местоположения, данные о покупателе. Нажмите кнопку «Оформить заказ».
Наш сервис запоминает данные о пользователе, информацию о заказе и в следующий раз предложит вам повторить к вводу данные предыдущего заказа. Если условия вам не подходят, выбирайте другие варианты.
Если Вы хотите узнать об условиях доставки и оплаты, но не желаете о них читать, то Вы можете позвонить любому нашему сотруднику, и он обязательно Вам поможет.
Покупка за безналичный расчет
При оплате за безналичный расчет наш сотрудник свяжется с Вами, чтобы подтвердить заказ и уточнить сроки и адрес доставки. После оформления заказа сотрудник нашей компании вышлет вам счет, по которому необходимо будет произвести оплату.
После оплаты заказа к Вам приедет наш курьер, который доставит ваш заказ.
Самостоятельно забрать заказ из пунктов самовывоза Вы можете после его оплаты по безналичному расчету. Оплата доставки до пунктов выдачи транспортных компаний производится по тарифам выбранной Вами транспортной компании непосредственно в месте получения заказа.
Самовывоз из офиса нашей компании в Зеленограде, так же возможен после предоплаты по безналичному расчету, и предварительной договоренности с менеджером.
Интернет-магазин выполняет доставку любого товара своей собственной Службой доставки.
Стоимость доставки курьером
Стоимость доставки по Москве, Все товары —750 руб., бесплатная доставка от 25000 руб
Стоимость доставки по Московской области рассчитывается для каждого заказа индивидуально и зависит от суммарного веса товаров заказа и удаленности адреса доставки.
Время доставки
Время доставки согласовывается с менеджером Службы доставки, который обязательно свяжется с вами сразу после того, как вы разместите свой заказ.
Для осуществления доставки в регионы России мы пользуемся услугами компаний СДЭК, ЖелДорЭкспедиция, Автотрейдинг, Деловые Линии. В таком случае, указанными кампаниями взимается стоимость доставки по их внутренним тарифам с заказчика при получении товара.
Самовывоз
Забрать товар самостоятельно и абсолютно бесплатно можно только по адресу: Москва, Зеленоград, Панфиловский проспект, дом 10.
Забрать товар самовывозом можно по любому из адресов самовывоза указанных здесь, стоимость доставки до пункта самовывоза рассчитывается для каждого заказа по тарифам транспортных компаний.













































